For Sale By Auction | 18:00, 05 June 2025 | Lot 3

Coombe House, 54 Broomfield Road, Kidderminster, Worcestershire DY11 5PH

Sold After

  • Healthcare Facility
  • 12 Bedrooms
  • Tenure: Freehold

Call the team on 0121 289 3838 for more information

Auction Date

Thu 05/06/2025

Auction Time

18:00

Auction Venue

Livestream

Detached Property

This substantial detached property has been, until recently, used as a nursing home consisting of twelve bedrooms in addition to ancillary facilities, such as bathrooms, kitchen, lounge and dining room. Set over two floors with single storey annexe, aswell as basement with storage and boiler house facilities, the property is an impressive two storey building set in attractive grounds amounting to approx 2/3 of an acre. Situated in a residential area within a short distance of Kidderminster Town Centre, the property lends itself to a multitude of future uses, subject to necessary Planning Consent. The accommodation comprises:-

Tenure

Freehold

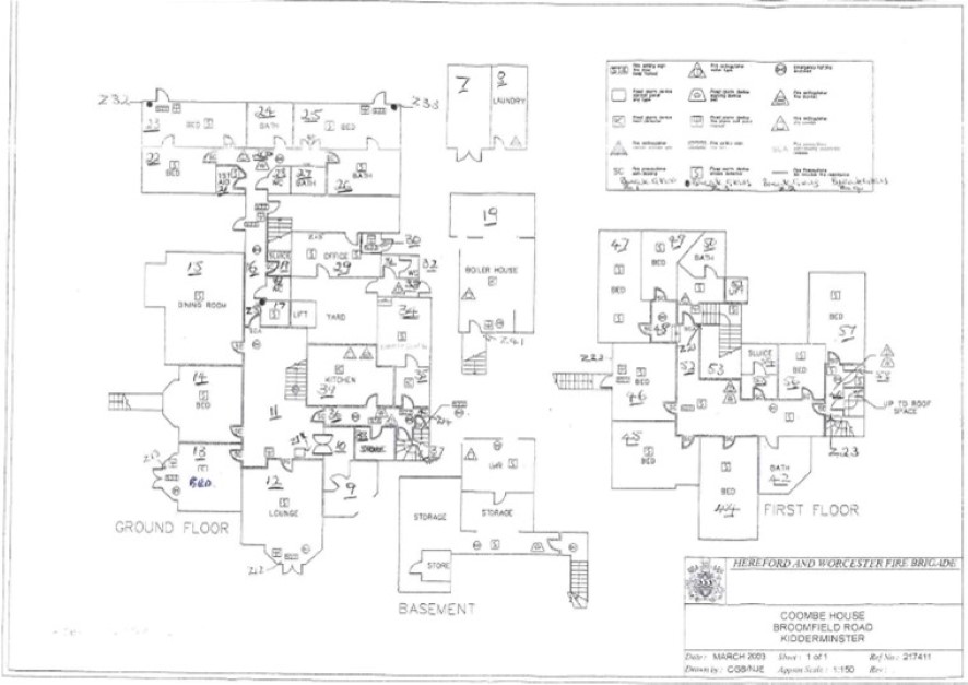
Ground Floor

Enclosed Porch leads into Impressive Entrance Hall with stairs to first floor off and doors to Lounge 5.3m x 4.9m. The following bedrooms are numbered as per the floorplan and the majority include a wash hand basin. Bedroom 13 4.3m x 4.1m Bedroom 14 5.3m x 4m Dining Room 5.2m x 7.5m Inner Hallway with W.C. and access to Annexe Sluece Room Staff Changing Room W.C. Lobby leads to Annexe Bedroom 22 5m x 3m Bedroom 23 7.3m x 3m Store Room 3m x 3m Shower Room Bathroom 4.78m x 3m Bedroom 25 7.28m x 3m Additional Bathroom Staff Training Room 4.5m x 3.6m Office 5.6m x 3m W.C Inner Hallway with access to Kitchen One 5.2m x 3.97m Staff Kitchen 2.5m x 2m Training Room 4.5m x 3.6m Office 5.6m x 3m Separate W.C.

First Floor

The first floor can be accessed via staircase or lift, Landing leads to :- Shower Room Bedroom 49 4.7m x 4.3m max Bedroom 47 4.8m x 2.2m plus 3.2m x 2.7m Bedroom 46 4.1m x 4.2m Bedroom 45 4.4m x 6m plus bay Bedroom 44 6.5m x 3.1m Bathroom Sluece Room Bedroom 56 3.8m x 3.9m Bedroom 57 3.5m x 5.7m

Outside

Laundry Room 5.8m x 2.7m Garage 5.2m x 3.2m Steps down to Plant Room with relatively new boiler system. The property is set amongst delightful grounds amounting to approximately 2/3 of an acre with gravel driveway surrounded by attractive lawns with mature trees, shrubs and flowering borders.

Viewing

By appointment through Auctioneers on 0121 289 3838

Energy Efficiency Rating (EPC)

Current Rating C

Services

Interested parties are requested to make their own enquiries to the relevant authorities as to the availability of services.

Local Authority

Wyre Forest District Council

Important Notice to Prospective Buyers:

We draw your attention to the Special Conditions of Sale within the Legal Pack, referring to other charges in addition to the purchase price which may become payable. Such costs may include Search Fees, reimbursement of Sellers costs and Legal Fees, and Transfer Fees amongst others.

Additional Fees

Buyer's Premium - 2% plus vat

Administration Charge - £1440 inc VAT payable on exchange of contracts.

Disbursements - Please see the legal pack for any disbursements listed that may become payable by the purchaser on completion.

View Larger Map

Disclaimer: The map preview provided above is for general guidance only and may not accurately reflect the exact location or surrounding buildings. Prospective buyers and interested parties are strongly advised to independently verify the precise location and surroundings before bidding.