For Sale By Auction | 12:30, 09 December 2025

25 Vincent Crescent, Chesterfield, Derbyshire, S40 3NW

*Guide | £135,000+ (plus fees)

  • Semi-Detached House
  • Tenure: See Legal Pack

Call the team on 01246 232 698 for more information

Auction Date

Tue 09/12/2025

Auction Time

12:30

Auction Venue

Live Stream

An excellent opportunity to purchase a three bedroomed semi-detached house.

The property benefits from generous accommodation throughout, together with gas central heating (not tested), and predominant uPVC double glazing. The property is situated in a sought after residential area and requires a comprehensive scheme of improvement throughout. The property is believed to be of interest to the owner occupier or investor, having a potential rental income in the order of £1,000 - £1,200 per calendar month (£12,000 - £14,400 per annum), once complete.

Tenure

See Legal Pack

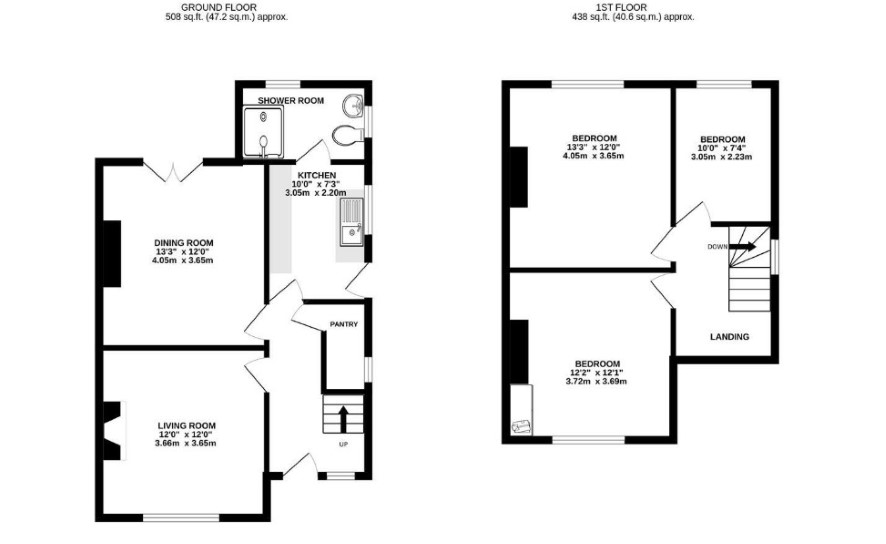
Ground Floor

An entrance door leads through to the entrance hall, having built in under-stair store, Lounge, Dining Area, Kitchen, and Shower Room/WC.

First Floor

A flight of stairs leads to the first-floor landing, comprising Bedroom One, Bedroom Two, and Bedroom Three.

Outside

Sees a walled frontage and driveway to the front, together with a paved patio and garden area to the rear, along with a garden shed.

Council Tax Band

B

Energy Efficiency Rating (EPC)

Current Rating D

Local Authority

Chesterfield Borough Council

Solicitors

BRM Solicitors, 99 Saltergate, Chesterfield, Derbyshire, S40 1LD, Tel: 01246 555111

Important Notice to Prospective Buyers:

We draw your attention to the Special Conditions of Sale within the Legal Pack, referring to other charges in addition to the purchase price which may become payable. Such costs may include Search Fees, reimbursement of Sellers costs and Legal Fees, and Transfer Fees amongst others.

Additional Fees

Buyer's Premium - 1% of the purchase price plus VAT (1.2% inc VAT), subject to a minimum fee of £1400 plus VAT (£1680 inc VAT), payable on completion.

Administration Charge - £2340 inc VAT, payable on exchange of contracts.

Disbursements - Please see the legal pack for any disbursements listed that may become payable by the purchaser on completion.

View Larger Map

Disclaimer: The map preview provided above is for general guidance only and may not accurately reflect the exact location or surrounding buildings. Prospective buyers and interested parties are strongly advised to independently verify the precise location and surroundings before bidding.