For Sale By Auction | 18:30, 20 November 2025 | Lot 1

15 Dugdale Road, Radford, Coventry, West Midlands CV6 1PD

Sold £115,000

  • Terraced House
  • 2 Bedrooms

Call the team on 024 7652 7789 for more information

Auction Date

Thu 20/11/2025

Auction Time

18:30

Auction Venue

Village Hotel, Dolomite Avenue, Coventry, CV4 9GZ

** SOLD AT AUCTION - £115,000 ** 3-bedroom, 3 storey, mid terrace property with 2 reception rooms requiring some redecoration. Located in a popular residential area. Ideal investment opportunity.

ACCOMMODATION

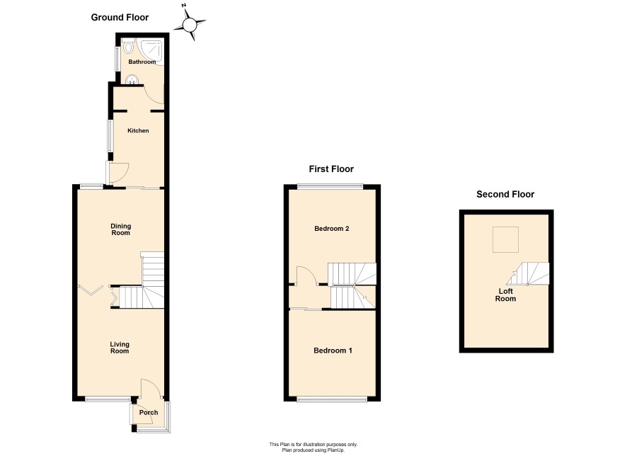
GROUND FLOOR Porch: Lounge: 11 ft 2 in x 11 ft Dining room: 11 ft 10 in x 11 ft 2 in Kitchen: 9 ft 11 in x 6 ft 7 in Shower room: FIRST FLOOR Bedroom 1: 11 ft 5 in x 9 ft 5 in Bedroom 2: 11 ft 2 in x 8 ft 8 in SECOND FLOOR Loft room: 17 ft 2 in max x 11 ft 3 in max

OUTSIDE

Front: Raised beding area. Rear: Paved garden. On street parking.

SERVICES AND HEATING

Mains gas, electricity, water and sewage are supplied to the property. (No tests have been carried out and we are therefore unable to confirm connections.) Gas central heating.

EPC RATING - D

COUNCIL TAX BAND - A

TENURE

Freehold with vacant possession.

ADDITIONAL COSTS

Administration Fee: £1,200 (£1,000 plus VAT) Buyers Premium: £1,440 (£1,200 plus VAT) Please see the legal pack for any further costs.

Important Notice to Prospective Buyers:

We draw your attention to the Special Conditions of Sale within the Legal Pack, referring to other charges in addition to the purchase price which may become payable. Such costs may include Search Fees, reimbursement of Sellers costs and Legal Fees, and Transfer Fees amongst others.

Additional Fees

Administration Charge - these fees are included in the above sales particulars.

Disbursements - Please see the legal pack for any disbursements listed that may become payable by the purchaser on completion.

View Larger Map

Disclaimer: The map preview provided above is for general guidance only and may not accurately reflect the exact location or surrounding buildings. Prospective buyers and interested parties are strongly advised to independently verify the precise location and surroundings before bidding.