For Sale By Auction | 18:30, 26 March 2026 | Lot 19

160 Tile Hill Lane, Tile Hill, Coventry, West Midlands CV4 9DE

Sold £110,000

  • Terraced House
  • 2 Bedrooms

Call the team on 024 7652 7789 for more information

Auction Date

Thu 26/03/2026

Auction Time

18:30

Auction Venue

Village Hotel, Dolomite Avenue, Coventry, CV4 9GZ

** SOLD AT AUCTION - £110,000 ** 2 bedroom, mid terrace property requiring modernisation with 2 reception rooms, ground floor bathroom and out building to the rear accessed via a shared driveway. Ideal investment opportunity.

ACCOMMODATION

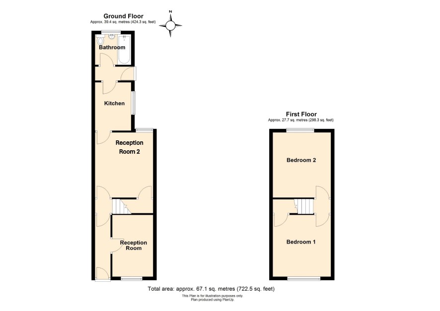
GROUND FLOOR Hallway: Reception room 1: 11 ft 8 in x 8 ft 1 in Reception room 2: 12 ft 2 in max x 11 ft 2 in Kitchen: 9 ft 1 in x 6 ft 10 in Bathroom: Lean-to: FIRST FLOOR Bedroom 1: 11 ft 8 in max x 11 ft 11 in Bedroom 2: 12 ft 2 in max x 11 ft 3 in

OUTSIDE

Front: Paved. Rear: Garden and Garage. On street parking.

SERVICES AND HEATING

Mains gas, electricity, water and sewage are supplied to the property. (No tests have been carried out and we are therefore unable to confirm connections.) Gas central heating. NOTE: Electric meter has been disconnected.

EPC RATING - C

COUNCIL TAX BAND - A

TENURE

Freehold with vacant possession.

ADDITIONAL COSTS

Administration Fee: £1,440 (£1,200 plus VAT) Buyers premium: £1,800 (£1,500 plus VAT) Please see the legal pack for any further costs.

Important Notice to Prospective Buyers:

We draw your attention to the Special Conditions of Sale within the Legal Pack, referring to other charges in addition to the purchase price which may become payable. Such costs may include Search Fees, reimbursement of Sellers costs and Legal Fees, and Transfer Fees amongst others.

Additional Fees

Administration Charge - these fees are included in the above sales particulars.

Disbursements - Please see the legal pack for any disbursements listed that may become payable by the purchaser on completion.

View Larger Map

Disclaimer: The map preview provided above is for general guidance only and may not accurately reflect the exact location or surrounding buildings. Prospective buyers and interested parties are strongly advised to independently verify the precise location and surroundings before bidding.