For Sale By Auction | 12:00, 17 July 2025 | Lot 27

Gospel Hall , Queen Street, Penrith, Cumbria CA11 7XF

Sold £130,000

  • Place of Worship
  • Tenure: See Legal Pack

Call the team on 01228 510 552 for more information

Auction Date

Thu 17/07/2025

Auction Time

12:00

Auction Venue

The Halston Hotel, 20-34 Warwick Road • CA1 1AB

Viewing Times:

Sun 22 Jun

11:30-12:00

Sat 28 Jun

13:30-14:00

Fri 4 Jul

11:30-12:00

Fri 11 Jul

11:30-12:00

Wed 16 Jul

11:30-12:00

Former Gospel Hall

A former Gospel Hall situated near the town centre which is suitable for a variety of uses subject to planning consent. Interested parties should make their own enquiries to Westmorland & Furness council regarding their proposed use.

Tenure

See Legal Pack

What3words location ///boxer.appointed.skinning

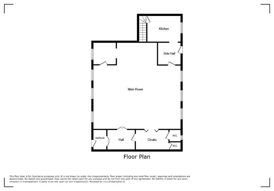
Main Room 36'6 x 30'9 overall

with various partitioned off areas including vestibule, hall and WC's

Kitchen 11'9 x 9'6

with stairs off

First Floor Room 12' x 8'

Services

Interested parties are invited to make their own enquiries to the relevant authorities as to the availability of the services.

Local Authority

Westmorland and Furness Council

Solicitors

Capstone Solicitors, Ref: Robert Wilson, Tel: 0117 942 8214

Important Notice to Prospective Buyers:

We draw your attention to the Special Conditions of Sale within the Legal Pack, referring to other charges in addition to the purchase price which may become payable. Such costs may include Search Fees, reimbursement of Sellers costs and Legal Fees, and Transfer Fees amongst others.

Additional Fees

Administration Charge - 1.2% inc VAT of the purchase price, subject to a minimum of £1500 inc VAT, payable on exchange of contracts.

Disbursements - Please see the legal pack for any disbursements listed that may become payable by the purchaser on completion.

View Larger Map

Disclaimer: The map preview provided above is for general guidance only and may not accurately reflect the exact location or surrounding buildings. Prospective buyers and interested parties are strongly advised to independently verify the precise location and surroundings before bidding.