For Sale By Auction | 12:00, 23 October 2025 | Lot 43

2 Tom Fold, Ambleside, Cumbria LA22 9AT

Sold £236,000

  • Terraced House
  • 2 Bedrooms
  • Tenure: See Legal Pack

Call the team on 01228 510 552 for more information

Auction Date

Thu 23/10/2025

Auction Time

12:00

Auction Venue

The Halston Hotel, 20-34 Warwick Road • CA1 1AB

2 bedroom, mid terraced traditional Lakeland cottage

This Grade ll listed property is spread over 3 floors and set within a Conservation Area of Ambleside. Conveniently located in the picturesque town centre with numerous walks on the door step in the heart of this popular Lakeland town within the Lake District National Park.

Tenure

See Legal Pack

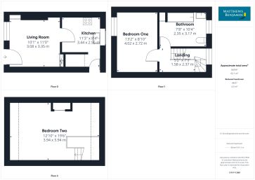
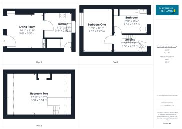
Ground Floor

Porch Living room - 10'1x11' Kitchen - 11'3x9'4

Second floor

Landing - 5'2x7'9 Bedroom - 13'2x8'10 Bathroom - 7'8x10'4

Third floor

Bedroom - 12'10x19'6

What3words

///stooping.town.drain

Viewing

To arrange a viewing please contact Matthews Benjamin Estate Agents on 015394 32220

Energy Efficiency Rating (EPC)

Current Rating D

Services

Interested parties are invited to make their own enquiries to the relevant authorities as to the availability of the services.

Local Authority

Westmorland and Furness Council

Solicitors

Temple Heelis Solicitors, Ref: Olivia Phillips, Tel: 01539 761776

Offered in association with

Matthews Benjamin

Important Notice to Prospective Buyers:

We draw your attention to the Special Conditions of Sale within the Legal Pack, referring to other charges in addition to the purchase price which may become payable. Such costs may include Search Fees, reimbursement of Sellers costs and Legal Fees, and Transfer Fees amongst others.

Additional Fees

Administration Charge - 1.2% inc VAT of the purchase price, subject to a minimum of £1500 inc VAT, payable on exchange of contracts.

Disbursements - Please see the legal pack for any disbursements listed that may become payable by the purchaser on completion.

View Larger Map

Disclaimer: The map preview provided above is for general guidance only and may not accurately reflect the exact location or surrounding buildings. Prospective buyers and interested parties are strongly advised to independently verify the precise location and surroundings before bidding.