For Sale By Auction | 12:00, 23 October 2025 | Lot 40

Land at Meadowbrook, Off Durranhill Road, Carlisle, Cumbria CA1 2GU

*Guide | £75,000 - £100,000 (plus fees)

  • Land
  • Tenure: See Legal Pack

Call the team on 01228 510 552 for more information

Auction Date

Thu 23/10/2025

Auction Time

12:00

Auction Venue

The Halston Hotel, 20-34 Warwick Road • CA1 1AB

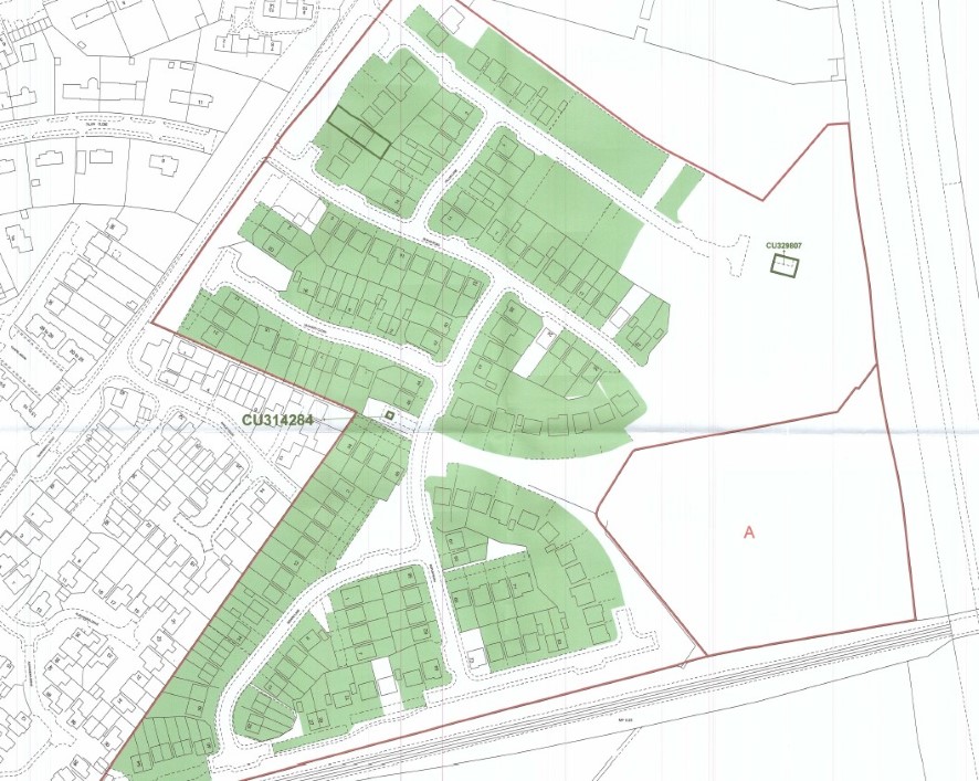
Potential development land

The site extends overall to approximately 4.1 acres and is situated off Rufus Road on the easterly outskirts of the City with easy access to the M6 at junction 43. It is marked A on the plan. The site is allocated for residential development (U18) in the Cumberland Council local plan for 150 units, however Taylor Wimpey has already delivered 198 units on their Phase 1 scheme directly to the East which is part of the same allocation. Taylor Wimpey previously submitted a planning application for 15 units on the site however this application was not determined and has now been finally disposed. Interested parties should make their own enquiries to Cumberland Council regarding their proposed use.

Tenure

See Legal Pack

What3words location ///sample.punchy.hooked

Services

Interested parties are invited to make their own enquiries to the relevant authorities as to the availability of the services.

Local Authority

Cumberland Council

Solicitors

Gateley Legal, Ref: Helen Graley, Tel: 0161 8367720

Important Notice to Prospective Buyers:

We draw your attention to the Special Conditions of Sale within the Legal Pack, referring to other charges in addition to the purchase price which may become payable. Such costs may include Search Fees, reimbursement of Sellers costs and Legal Fees, and Transfer Fees amongst others.

Additional Fees

Administration Charge - 1.2% inc VAT of the purchase price, subject to a minimum of £1500 inc VAT, payable on exchange of contracts.

Disbursements - Please see the legal pack for any disbursements listed that may become payable by the purchaser on completion.

View Larger Map

Disclaimer: The map preview provided above is for general guidance only and may not accurately reflect the exact location or surrounding buildings. Prospective buyers and interested parties are strongly advised to independently verify the precise location and surroundings before bidding.