For Sale By Auction | 12:00, 10 December 2025 | Lot 23

45 Soutergate, Ulverston, Cumbria LA12 7ES

*Guide | £120,000 (plus fees)

  • Terraced House
  • 3 Bedrooms
  • Tenure: Freehold

Call the team on 01228 510 552 for more information

Auction Date

Wed 10/12/2025

Auction Time

12:00

Auction Venue

The Halston Hotel, 20-34 Warwick Road • CA1 1AB

Character cottage with 3 bedrooms

This characterful cottage is situated only a few minutes walk away from the cobbled town centre where there is a wide choice of amenities. Providing accommodation that would suit a range of buyers and would benefit from general modernisation.

Tenure

Freehold

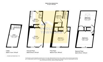
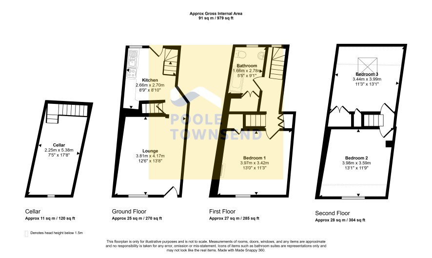
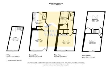
Ground Floor

Lounge - 12'6x13'8 Kitchen - 8'9x8'10

First Floor

Bedroom - 13'10x11'3 Bathroom - 5'5x9'1

Second Floor

Bedroom - 13'1x11'9 Bedroom - 13'3x13'1

Cellar - 7'5x17'8

Viewings

Viewing arrangements, please call Poole Townsend on 01229 588111

Energy Efficiency Rating (EPC)

Current Rating D

Services

Interested parties are invited to make their own enquiries to the relevant authorities as to the availability of the services.

Local Authority

Westmorland and Furness Council

Solicitors

Poole Townsend, 69-75 Duke Street, Ref: Rio Smith, Tel: 01229 811811

Offered in association with

Poole Townsend

Important Notice to Prospective Buyers:

We draw your attention to the Special Conditions of Sale within the Legal Pack, referring to other charges in addition to the purchase price which may become payable. Such costs may include Search Fees, reimbursement of Sellers costs and Legal Fees, and Transfer Fees amongst others.

Additional Fees

Administration Charge - 1.2% inc VAT of the purchase price, subject to a minimum of £1500 inc VAT, payable on exchange of contracts.

Disbursements - Please see the legal pack for any disbursements listed that may become payable by the purchaser on completion.

View Larger Map

Disclaimer: The map preview provided above is for general guidance only and may not accurately reflect the exact location or surrounding buildings. Prospective buyers and interested parties are strongly advised to independently verify the precise location and surroundings before bidding.