For Sale By Auction | 12:00, 10 December 2025

44 Fox Street, Swarthmoor, Ulverston, Cumbria LA12 0HT

*Guide | £85,000 (plus fees)

  • Terraced House
  • 3 Bedrooms
  • Tenure: See Legal Pack

Call the team on 01228 510 552 for more information

Auction Date

Wed 10/12/2025

Auction Time

12:00

Auction Venue

The Halston Hotel, 20-34 Warwick Road • CA1 1AB

Three bedroom mid traditional terrace house

Three bedroom traditional mid terrace house, located on the outskirts of Ulverston. Comprises of entrance hall, lounge open to dining room, kitchen, three bedrooms, bathroom and loft with drop down ladder and skylight. Garden to the front and yard to the rear.

Tenure

See Legal Pack

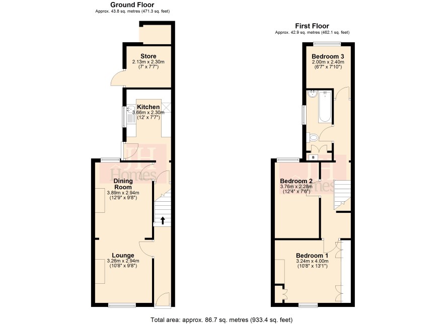
Ground Floor

Entrance Hall Lounge - 3.26 x 2.94m Dining Room - 3.89 x 2.94m Kitchen - 3.66 x 2.30m Store - 2.13 x 2.30m

First Floor

Bedroom - 3.24 x 4m Bedroom - 3.76 x 2.28 Bedroom - 2 x 2.40m Bathroom

Outside

Garden to the front Yard to the rear

Viewings

To arrange a viewing please contact JH Homes on 01229 445004

Energy Efficiency Rating (EPC)

Current Rating D

Services

Interested parties are invited to make their own enquiries to the relevant authorities as to the availability of the services.

Local Authority

Westmorland and Furness Council

Solicitors

Poole Townsend, 69-75 Duke Street, Ref: Heather Bruff, Tel: 01229 811811

Offered in association with

JH Homes

Important Notice to Prospective Buyers:

We draw your attention to the Special Conditions of Sale within the Legal Pack, referring to other charges in addition to the purchase price which may become payable. Such costs may include Search Fees, reimbursement of Sellers costs and Legal Fees, and Transfer Fees amongst others.

Additional Fees

Administration Charge - 1.2% inc VAT of the purchase price, subject to a minimum of £1500 inc VAT, payable on exchange of contracts.

Disbursements - Please see the legal pack for any disbursements listed that may become payable by the purchaser on completion.

View Larger Map

Disclaimer: The map preview provided above is for general guidance only and may not accurately reflect the exact location or surrounding buildings. Prospective buyers and interested parties are strongly advised to independently verify the precise location and surroundings before bidding.