For Sale By Auction | 12:00, 10 December 2025

1 & 1A Whitehaven Road, Cleator Moor, Cumbria CA25 5QN

*Guide | £65,000 (plus fees)

  • Flat
  • 3 Bedrooms
  • Tenure: See Legal Pack

Call the team on 01228 510 552 for more information

Auction Date

Wed 10/12/2025

Auction Time

12:00

Auction Venue

The Halston Hotel, 20-34 Warwick Road • CA1 1AB

Viewing Times:

Sat 22 Nov

10:00-10:30

Tue 25 Nov

10:00-10:30

Sat 6 Dec

10:00-10:30

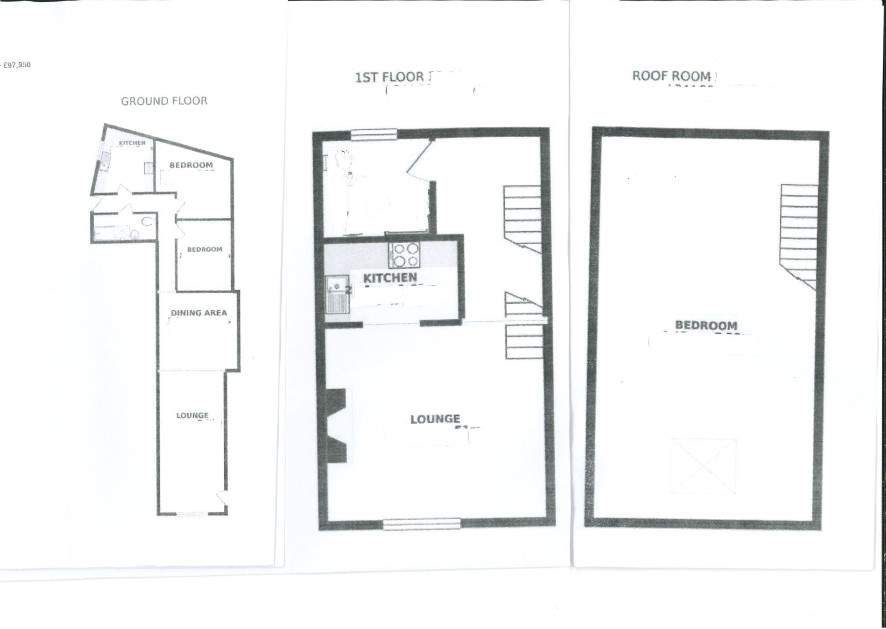
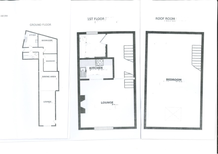
Investment property -pair of self-contained flats

A freehold investment property near the corner of Bowthorn Road in Cleator Moor. Originally a shop on the ground floor, the property was converted into two flats, roof lights need to be added to the ground floor bedrooms and whilst solar panels, a heat pump and some insulation has been added, further work is required on the upper flat.

Tenure

See Legal Pack

What3words location ///mermaids.wonderful.moving

Ground Floor Flat

Lounge 23'9 x 11'9 Dining Area 13' x 12' Kitchen 11' x 9' Bedroom 11'9 x 9'3 Bedroom 12'9 x 11'6 Bathroom 10' x 4'

Upper Flat

Sitting Room 14' x 11' max Kitchen 7'9 x 5' Shower Room 7' x 6'3 needs refitted Attic Bedroom 24' x 14'3 max

Energy Efficiency Rating (EPC)

Current Rating D & G

Services

Interested parties are invited to make their own enquiries to the relevant authorities as to the availability of the services.

Local Authority

Cumberland Council

Solicitors

Brockbanks, 71 Main Street, Ref: Louise Holt, Tel: 01900 827222

Important Notice to Prospective Buyers:

We draw your attention to the Special Conditions of Sale within the Legal Pack, referring to other charges in addition to the purchase price which may become payable. Such costs may include Search Fees, reimbursement of Sellers costs and Legal Fees, and Transfer Fees amongst others.

Additional Fees

Administration Charge - 1.2% inc VAT of the purchase price, subject to a minimum of £1500 inc VAT, payable on exchange of contracts.

Disbursements - Please see the legal pack for any disbursements listed that may become payable by the purchaser on completion.

View Larger Map

Disclaimer: The map preview provided above is for general guidance only and may not accurately reflect the exact location or surrounding buildings. Prospective buyers and interested parties are strongly advised to independently verify the precise location and surroundings before bidding.