For Sale By Auction | 12:00, 10 December 2025

18 Mill Street, Whitehaven, Cumbria CA28 7QS

*Guide | £55,000 - £65,000 (plus fees)

  • End of Terrace House
  • 2 Bedrooms
  • Tenure: See Legal Pack

Call the team on 01228 510 552 for more information

Auction Date

Wed 10/12/2025

Auction Time

12:00

Auction Venue

The Halston Hotel, 20-34 Warwick Road • CA1 1AB

Viewing Times:

Tue 25 Nov

13:15-13:45

Sat 6 Dec

13:15-13:45

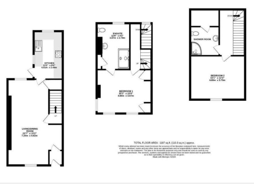
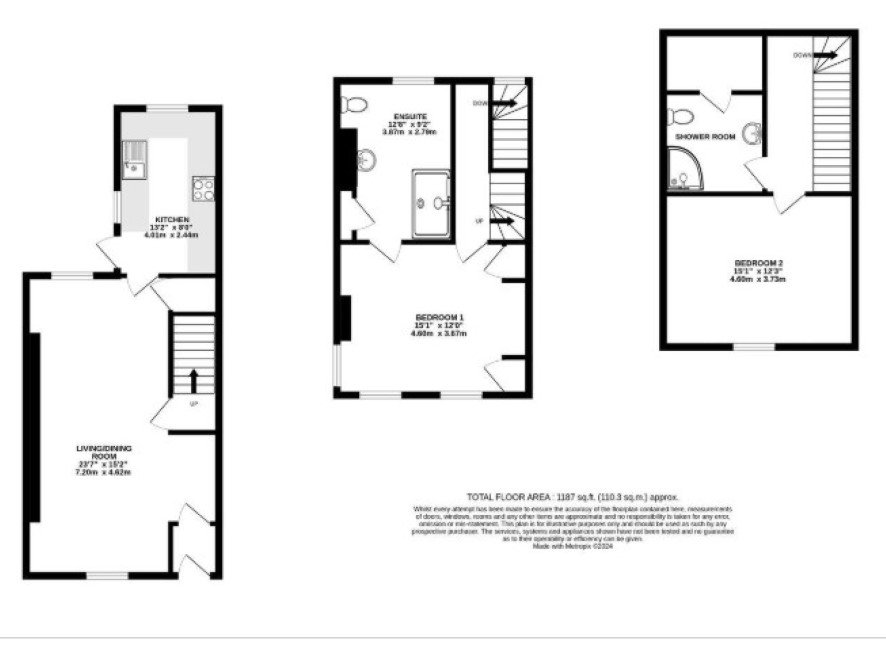
End terrace house with 2 bed's & 2 bath's

A spacious, three storey, end of terrace house with 23'6 through reception room, two bedrooms and two bathrooms. In need of some improvement and possibly structural repair.

Tenure

See Legal Pack

What3words location ///price.empire.rail

Ground Floor

Vestibule Through Living/ Dining Room 23'6 x 10'3 Kitchen 13'3 x 7'9

First Floor

Front Bedroom 15' x 12' En-suite Shower Room 12' x 7'6

Second Floor

Bedroom 12'3 x 13'6 Shower Room 7'9 x 7'3

Outside

Rear yard

Energy Efficiency Rating (EPC)

Current Rating D

Services

Interested parties are invited to make their own enquiries to the relevant authorities as to the availability of the services.

Local Authority

Cumberland Council

Solicitors

Burnetts, 3c Lakeland Business Park, Ref: Kathryn Hill, Tel: 01900 510366

Offered in association with

Lillingtons Estate Agents wh

Important Notice to Prospective Buyers:

We draw your attention to the Special Conditions of Sale within the Legal Pack, referring to other charges in addition to the purchase price which may become payable. Such costs may include Search Fees, reimbursement of Sellers costs and Legal Fees, and Transfer Fees amongst others.

Additional Fees

Administration Charge - 1.2% inc VAT of the purchase price, subject to a minimum of £1500 inc VAT, payable on exchange of contracts.

Disbursements - Please see the legal pack for any disbursements listed that may become payable by the purchaser on completion.

View Larger Map

Disclaimer: The map preview provided above is for general guidance only and may not accurately reflect the exact location or surrounding buildings. Prospective buyers and interested parties are strongly advised to independently verify the precise location and surroundings before bidding.