For Sale By Auction | 12:00, 12 February 2026 | Lot 42

Hill Cottage, Redmain, Cockermouth, Cumbria CA13 0PZ

Sold £314,000

  • Detached House
  • 4 Bedrooms
  • Tenure: See Legal Pack

Call the team on 01228 510 552 for more information

Auction Date

Thu 12/02/2026

Auction Time

12:00

Auction Venue

The Halston Hotel, 20-34 Warwick Road • CA1 1AB

Viewing Times:

Sat 24 Jan

11:00-11:30

Sat 31 Jan

11:00-11:30

Sat 7 Feb

11:00-11:30

Detached family house in Lake District National park

A detached family house occupying a pleasant garden site in this rural area enjoying spectacular open views and situated just outside Cockermouth, within the Lake District National Park and with easy access to the coast, Carlisle and West Cumbria. The property is in need of modernisation but offers tremendous potential with four bedrooms, two bathrooms, gardens and garage.

Tenure

See Legal Pack

What3words location ///spoiled.sticking.plod

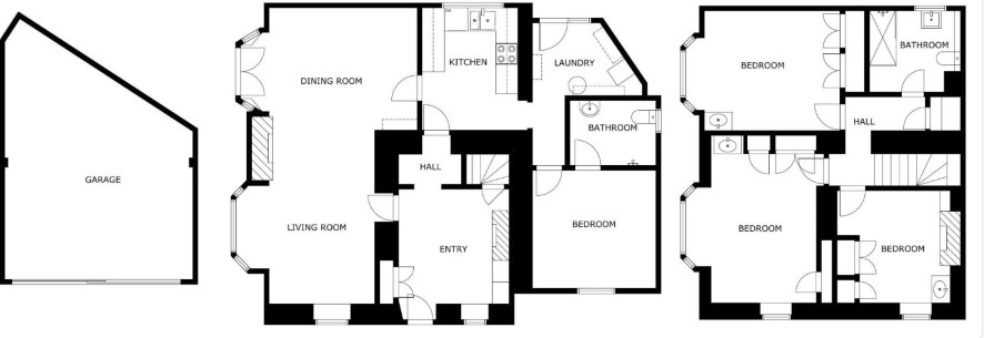
Ground Floor

Reception Hall 11'6 x 9'3 Living/Dining Room 28' x 14'9 max Kitchen 11'6 x 9'3 Laundry 7' x 8'6 ave Bedroom 12' x 11'6 En-suite Wet room 8'3 x 6'3

First Floor

Bedroom 13'6 x 11'6 Bathroom 8'9 x 8' Bedroom 14' x 10' Bedroom 11' x 8'

Outside

Generous garden site and garage/workshop - see title plan.

Energy Efficiency Rating (EPC)

Current Rating F

Services

Interested parties are invited to make their own enquiries to the relevant authorities as to the availability of the services.

Local Authority

Cumberland Council

Solicitors

Brockbanks, Norham House, Ref: Ceri Bevan, Tel: 01900 827222

Offered in association with

H&H Land & Estates

Important Notice to Prospective Buyers:

We draw your attention to the Special Conditions of Sale within the Legal Pack, referring to other charges in addition to the purchase price which may become payable. Such costs may include Search Fees, reimbursement of Sellers costs and Legal Fees, and Transfer Fees amongst others.

Additional Fees

Administration Charge - 1.2% inc VAT of the purchase price, subject to a minimum of £1500 inc VAT, payable on exchange of contracts.

Disbursements - Please see the legal pack for any disbursements listed that may become payable by the purchaser on completion.

View Larger Map

Disclaimer: The map preview provided above is for general guidance only and may not accurately reflect the exact location or surrounding buildings. Prospective buyers and interested parties are strongly advised to independently verify the precise location and surroundings before bidding.