For Sale By Auction | 12:00, 09 April 2026 | Lot 13

31 Thwaiteville, Whitehaven, Cumbria CA28 9EL

*Guide | £35,000 (plus fees)

  • Terraced Bungalow
  • 2 Bedrooms
  • Tenure: See Legal Pack

Call the team on 01228 510 552 for more information

Auction Date

Thu 09/04/2026

Auction Time

12:00

Auction Venue

The Halston Hotel, 20-34 Warwick Road • CA1 1AB

Viewing Times:

Sat 21 Mar

10:30-11:00

Sat 28 Mar

10:30-11:00

Sat 4 Apr

10:30-11:00

Two bedroom bungalow

Two bedroom end terrace single storey property in need of full modernisation. Offering two double bedrooms, kitchen and bathroom with front and a large rear garden in a popular residential location. Making it ideal for the developer or investor.

Tenure

See Legal Pack

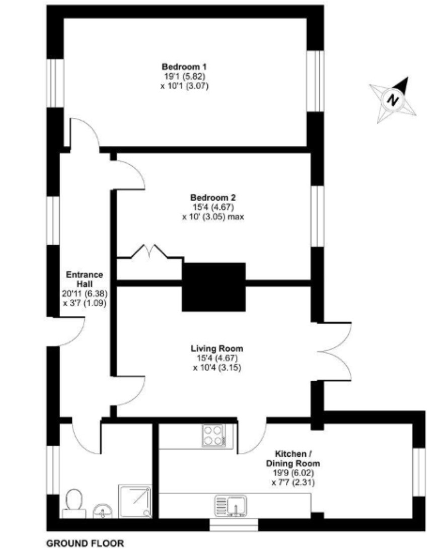
Entrance Hall - 20'11 x 3'6

Living room - 15'4 x 10'4

Bedroom - 19'1 x 10'0

Bedroom - 15'3 x 10'0

Kitchen/Dining room - 19'9 x 7'6

Shower room

Energy Efficiency Rating (EPC)

Current Rating D

Services

Interested parties are invited to make their own enquiries to the relevant authorities as to the availability of the services.

Local Authority

Cumberland Council

Solicitors

Brockbanks, Norham House, Ref: Ceri Bevan, Tel: 01900 827222

Offered in association with

Grisdales Estate Agents

Important Notice to Prospective Buyers:

We draw your attention to the Special Conditions of Sale within the Legal Pack, referring to other charges in addition to the purchase price which may become payable. Such costs may include Search Fees, reimbursement of Sellers costs and Legal Fees, and Transfer Fees amongst others.

Additional Fees

Administration Charge - 1.2% inc VAT of the purchase price, subject to a minimum of £1500 inc VAT, payable on exchange of contracts.

Disbursements - Please see the legal pack for any disbursements listed that may become payable by the purchaser on completion.

View Larger Map

Disclaimer: The map preview provided above is for general guidance only and may not accurately reflect the exact location or surrounding buildings. Prospective buyers and interested parties are strongly advised to independently verify the precise location and surroundings before bidding.