Withdrawn | Lot 28

3 Gloucester Place, Briston, Melton Constable, Norfolk NR24 2LD

Withdrawn

  • Semi-Detached House
  • 2 Bedrooms
  • Tenure: Freehold

Call the team on 01603 505 100 for more information

Auction Date

Wed 01/11/2023

Auction Time

11:00

Auction Venue

Livestream Auction

Tucked away two bedroom semi-detached cottage with off-road parking

This hall entrance period semi detached property has been in the same family since the early 1960's. It has electric heating, is mostly double glazed and now requires a program of modernisation to realise its full potential. With spacious accommodation on the ground floor there is potential to turn it into a three bedroom property. It is sold with vacant possession. The property is not listed and is located down an unadopted no through road. An ideal purchase for an owner occupier or investor. On instruction of executors.

Tenure

Freehold

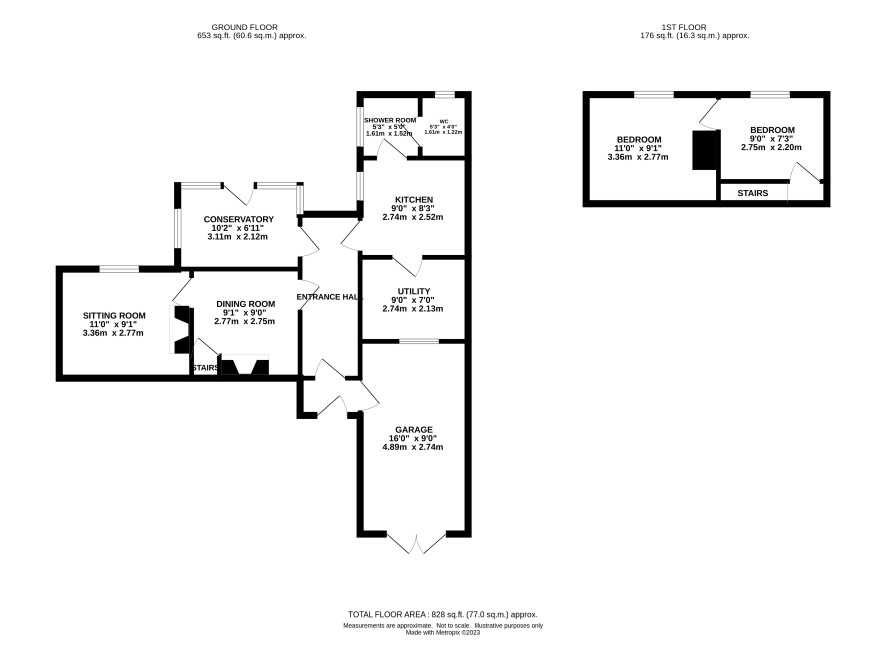
Ground floor

Entrance lobby, entrance hall, dining room, sitting room, conservatory, utility, kitchen, shower room, wc

First floor

Two bedrooms

Outside

Garage with electricity, off road parking, wooden shed to front, tin shed to rear

Council Tax

A

Viewings

Viewings are being arranged for Wednesday 15th and Monday 20 November. Please contact the Norwich Office to book an appointment.

Energy Efficiency Rating (EPC)

Current Rating G

Services

Interested parties are requested to make their own enquiries to the relevant authorities as to the availability of services.

Local Authority

North Norfolk District Council

Solicitors

Ward Gethin Archer (Dereham), Ref: Tracy Guest, Tel: 01362 852918

Offered in association with

Spaldings

Important Notice to Prospective Buyers:

We draw your attention to the Special Conditions of Sale within the Legal Pack, referring to other charges in addition to the purchase price which may become payable. Such costs may include Search Fees, reimbursement of Sellers costs and Legal Fees, and Transfer Fees amongst others.

Additional Fees

Buyer's Premium - £900 inc VAT payable on exchange of contracts.

Administration Charge - 0.3% inc VAT of the purchase price, subject to a minimum of £1200 inc VAT, payable on exchange of contracts.

Disbursements - Please see the legal pack for any disbursements listed that may become payable by the purchaser on completion.

View Larger Map

Disclaimer: The map preview provided above is for general guidance only and may not accurately reflect the exact location or surrounding buildings. Prospective buyers and interested parties are strongly advised to independently verify the precise location and surroundings before bidding.