For Sale By Auction | 11:00, 01 November 2023 | Lot 35

62 Moor Lane, Sculthorpe, Fakenham, Norfolk NR21 9PX

Sold £183,000

  • Cottage
  • 2 Bedrooms
  • Tenure: Freehold

Call the team on 01603 505 100 for more information

Auction Date

Wed 01/11/2023

Auction Time

11:00

Auction Venue

Livestream Auction

Charming period two bedroom end terrace cottage with off-road parking

This flint two bedroom end terrace property of three has been well maintained, and has electric heating and is double glazed. It was previously let and is now to be sold with vacant possession. There is the potential to use one of the ground floor rooms as a bedroom to make it a three bedroom cottage. It is conveniently situated around two miles north west of Fakenham which has a comprehensive range of services and amenities. It has been in the same ownership for over 30 years and would be ideal for a first time buyer, owner occupier or buy-to-let investor.

Tenure

Freehold

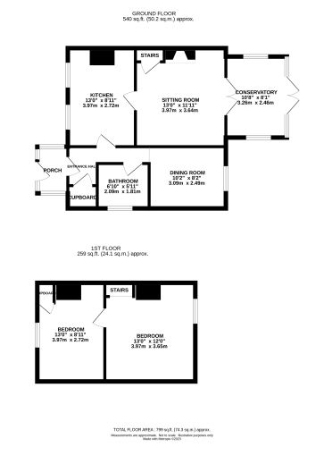
Ground Floor

Entrance porch, entrance hall, bathroom, sitting room, dining room, kitchen, conservatory

First Floor

Two bedrooms

Outside

Front, side and rear garden area, detached brick garage, off road parking.

Council Tax Band

A

Viewings

Open viewings have been arranged and the final day is Monday 30 October. To book an appointment please call the Norwich office.

Energy Efficiency Rating (EPC)

Current Rating E

Services

Interested parties are requested to make their own enquiries to the relevant authorities as to the availability of services.

Local Authority

North Norfolk District Council

Solicitors

Hayley Wright Ltd, Ref: Hayley Wright, Tel: 01328 853939

Important Notice to Prospective Buyers:

We draw your attention to the Special Conditions of Sale within the Legal Pack, referring to other charges in addition to the purchase price which may become payable. Such costs may include Search Fees, reimbursement of Sellers costs and Legal Fees, and Transfer Fees amongst others.

Additional Fees

Administration Charge - 0.3% inc VAT of the purchase price, subject to a minimum of £1200 inc VAT, payable on exchange of contracts.

Disbursements - Please see the legal pack for any disbursements listed that may become payable by the purchaser on completion.

View Larger Map

Disclaimer: The map preview provided above is for general guidance only and may not accurately reflect the exact location or surrounding buildings. Prospective buyers and interested parties are strongly advised to independently verify the precise location and surroundings before bidding.