Call the team on 01603 505 100 for more information
A substantial three storey mid-terraced property recently redecorated throughout and situated close to the sea in the popular resort of Great Yarmouth
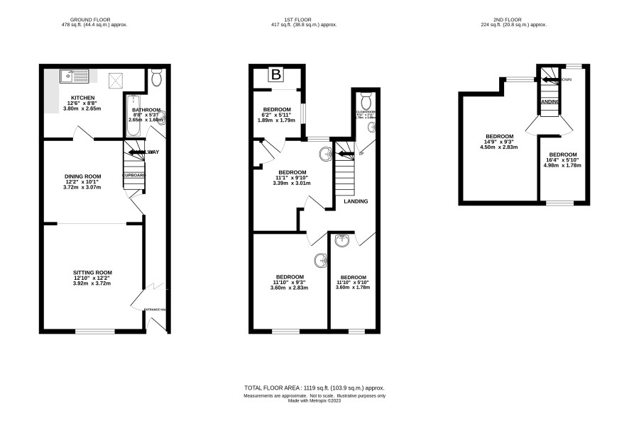
This six bedroomed property provides generous accommodation arranged over three floors. It has recently undergone redecoration throughout and would be suitable as an investment for the buy-to-let market.
Tenure
Freehold
Ground Floor
Hall, lounge/diner, kitchen, bathroom
First Floor
Landing, separate w.c., three bedrooms with fourth leading off the rear bedroom, stairs to second floor
Second Floor
Landing, two further bedrooms
Council Tax Band
B
Viewings
Viewings have been arranged and the next are on Friday 27 October. Please call the Norwich office to book an appointment.
Energy Efficiency Rating (EPC)
Current Rating E
Services
Interested parties are requested to make their own enquiries to the relevant authorities as to the availability of services.
Local Authority
Great Yarmouth Borough Council
Solicitors
22 Law, Ref: Claire Stanton, Tel: 0191 432 4408
Important Notice to Prospective Buyers:
We draw your attention to the Special Conditions of Sale within the Legal Pack, referring to other charges in addition to the purchase price which may become payable. Such costs may include Search Fees, reimbursement of Sellers costs and Legal Fees, and Transfer Fees amongst others.
Additional Fees
Buyer's Premium - £960 inc VAT payable on exchange of contracts.
Administration Charge - 0.3% inc VAT of the purchase price, subject to a minimum of £1200 inc VAT, payable on exchange of contracts.
Disbursements - Please see the legal pack for any disbursements listed that may become payable by the purchaser on completion.
Disclaimer: The map preview provided above is for general guidance only and may not accurately reflect the exact location or surrounding buildings. Prospective buyers and interested parties are strongly advised to independently verify the precise location and surroundings before bidding.