For Sale By Auction | 11:00, 01 November 2023 | Lot 11

Foundry House, South Walsham Road, Panxworth, Norwich, Norfolk NR13 6JG

Sold After

  • Detached House
  • 4 Bedrooms
  • Tenure: Freehold

Call the team on 01603 505 100 for more information

Auction Date

Wed 01/11/2023

Auction Time

11:00

Auction Venue

Livestream Auction

A four bedroom detached period building requiring full refurbishment

This impressive detached period property has undergone partial renovation following water damage but is now ready for a buyer to complete the modernisation and improvement works returning the house to pristine condition. The house offers spacious accommodation including two reception rooms and a kitchen on the ground floor and four bedrooms and a bathroom on the first floor. There are small gardens and two off road parking spaces. Panxworth is a small Broadland village approximately 5 miles from Wroxham , 4 miles from Acle and 7 miles East of Norwich.

Tenure

Freehold

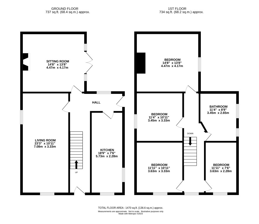
Ground Floor

Hall, living room, dining room, kitchen

First Floor

Landing, four bedrooms, bathroom

Outside

Front garden with off road parking space, side courtyard style garden and further parking space.

Council Tax Band

D

Viewings

Open viewings are arranged and the next are on Friday 27th October. Please call the Norwich office to book an appointment.

Energy Efficiency Rating (EPC)

Current Rating G

Services

Interested parties are requested to make their own enquiries to the relevant authorities as to the availability of services.

Local Authority

Broadland District Council

Solicitors

22 Law, Ref: Claire Stanton, Tel: 0191 432 4408

Important Notice to Prospective Buyers:

We draw your attention to the Special Conditions of Sale within the Legal Pack, referring to other charges in addition to the purchase price which may become payable. Such costs may include Search Fees, reimbursement of Sellers costs and Legal Fees, and Transfer Fees amongst others.

Additional Fees

Buyer's Premium - £600 inc VAT payable on exchange of contracts.

Administration Charge - 0.3% inc VAT of the purchase price, subject to a minimum of £1200 inc VAT, payable on exchange of contracts.

Disbursements - Please see the legal pack for any disbursements listed that may become payable by the purchaser on completion.

View Larger Map

Disclaimer: The map preview provided above is for general guidance only and may not accurately reflect the exact location or surrounding buildings. Prospective buyers and interested parties are strongly advised to independently verify the precise location and surroundings before bidding.