For Sale By Auction | 11:00, 01 November 2023 | Lot 40

28 Suffolk Road, Ipswich, Suffolk IP4 2HH

Sold After

  • Terraced House
  • 2 Bedrooms
  • Tenure: Freehold

Call the team on 01473 558 888 for more information

Auction Date

Wed 01/11/2023

Auction Time

11:00

Auction Venue

Livestream Auction

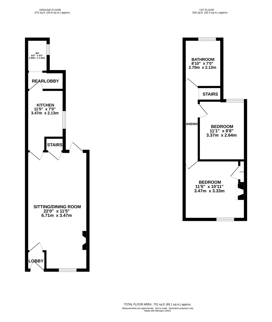
A Victorian terraced house close to Christchurch Park

This Victorian terraced house is situated in a popular north-east Ipswich residential area close to the town centre and Christchurch Park. The two bedroom accommodation on offer includes a ground floor w.c. and first floor bathroom and also benefits from gas central heating and double glazing. The property is currently tenanted on a rolling AST at a rent of £660 per calendar month (£7,920 per annum) with the same occupant for the last 7 years which provides a solid investment opportunity.

Tenure

Freehold

Council Tax Band

A

Viewing

Open Viewings have been scheduled for Tuesday 17th and Monday 23rd October. BOOKING AN APPOINTMENT IS ESSENTIAL. Please contact our Ipswich office on 01473 558888 to make arrangements.

Energy Efficiency Rating (EPC)

Current Rating D

Services

Interested parties are requested to make their own enquiries to the relevant authorities as to the availability of services.

Local Authority

Ipswich Borough Council

Solicitors

Watkins Stewart and Ross, Ref: Sarah Simpson, Tel: 01473 226266

Important Notice to Prospective Buyers:

We draw your attention to the Special Conditions of Sale within the Legal Pack, referring to other charges in addition to the purchase price which may become payable. Such costs may include Search Fees, reimbursement of Sellers costs and Legal Fees, and Transfer Fees amongst others.

Additional Fees

Buyer's Premium - £900 inc VAT payable on exchange of contracts.

Administration Charge - 0.3% inc VAT of the purchase price, subject to a minimum of £1200 inc VAT, payable on exchange of contracts.

Disbursements - Please see the legal pack for any disbursements listed that may become payable by the purchaser on completion.

View Larger Map

Disclaimer: The map preview provided above is for general guidance only and may not accurately reflect the exact location or surrounding buildings. Prospective buyers and interested parties are strongly advised to independently verify the precise location and surroundings before bidding.