For Sale By Auction | 11:00, 11 December 2024 | Lot 49

55 Victor Road, Colchester, Essex CO1 2LX

Sold £139,000

  • Terraced House
  • 2 Bedrooms
  • Tenure: Freehold

Call the team on 01702 939933 for more information

Auction Date

Wed 11/12/2024

Auction Time

11:00

Auction Venue

Livestream Auction

A Freehold Vacant end of terrace house requiring improvement/repairs

Situated in the popular New town area of the city this two storey end-terraced two bedroom, two reception room house does require some repairs. Although the Kitchen and shower room have been refitted, most ceilings have been removed and require replastering. There is some evidence of structural movement it is not known whether this is historic or ongoing. Purchasers are advised to make their own enquiries in this regard.

Tenure

Freehold

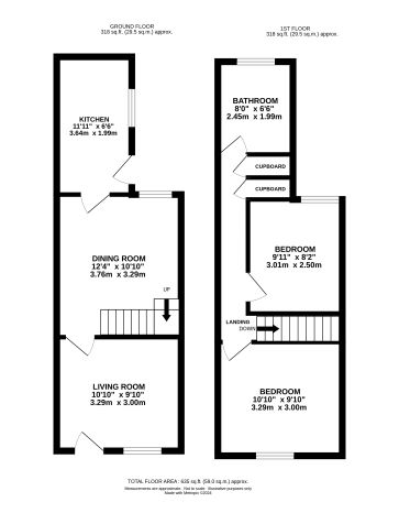
Ground Floor

Entrance Door, Lounge 10'3" x 9'8" Dining Room 12'8" x 10'8" Kitchen 11'7" x 6"

First Floor

Landing Bedroom 1 10'8" x 9'8" Bedroom 2 10'1" x 7'8" Shower/Wet room 6' x6'

Outside

Front Garden Shared pedestrian access to Rear Garden

Council Tax Band

B

Viewing Details

Upcoming viewing dates: Tuesday 10th December 11:00-11:30

Energy Efficiency Rating (EPC)

Current Rating D

Services

Interested parties are requested to make their own enquiries to the relevant authorities as to the availability of services.

Local Authority

Colchester Borough Council

Solicitors

Birketts (Chelmsford), Ref: Cara Chambers, Tel: 01245 211252

Important Notice to Prospective Buyers:

We draw your attention to the Special Conditions of Sale within the Legal Pack, referring to other charges in addition to the purchase price which may become payable. Such costs may include Search Fees, reimbursement of Sellers costs and Legal Fees, and Transfer Fees amongst others.

Additional Fees

Buyer's Premium - £1200 inc VAT payable on exchange of contracts.

Administration Charge - 0.3% inc VAT of the purchase price, subject to a minimum of £1200 inc VAT, payable on exchange of contracts.

Disbursements - Please see the legal pack for any disbursements listed that may become payable by the purchaser on completion.

View Larger Map

Disclaimer: The map preview provided above is for general guidance only and may not accurately reflect the exact location or surrounding buildings. Prospective buyers and interested parties are strongly advised to independently verify the precise location and surroundings before bidding.