For Sale By Auction | 11:00, 11 December 2024 | Lot 120

5 Hobland Hall Cottages, Hobland Road, Bradwell, Great Yarmouth, Norfolk NR31 9AR

Sold £130,000

  • Semi-Detached House
  • Tenure: Freehold

Call the team on 01603 505 100 for more information

Auction Date

Wed 11/12/2024

Auction Time

11:00

Auction Venue

Livestream Auction

A semi detached three bedroom house requiring full modernisation and remedial repair

Having been tenanted for many years this delightfully positioned semi detached house is now vacant and in need of a comprehensive program of modernisation and remedial repair. The property which has extensive gardens has potential for a number of parking spaces and benefits from an attractive aspect over open farmland. The house is suitable for the experienced builder/investor and is suitable for cash buyers only. Great Yarmouth and Gorleston are the closest towns where a comprehensive range of shops community facilities and public transport can be found.

Tenure

Freehold

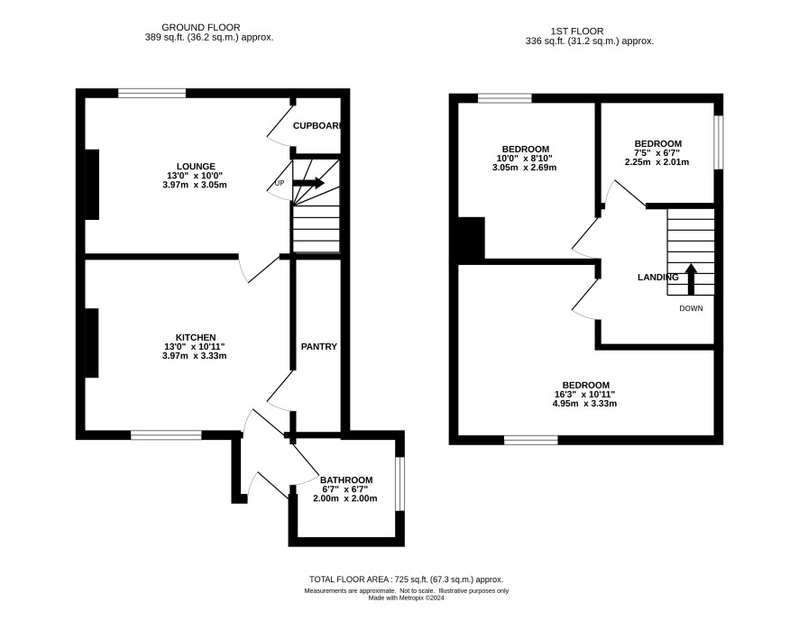
Ground Floor

Hall, lounge, kitchen, bathroom

First Floor

Landing, three bedrooms

Council Tax Band

A

Viewings

Viewings can be arranged and the next is on Thursday 5 December. Please call the Norwich Office to book an appointment.

Energy Efficiency Rating (EPC)

Current Rating G

Services

Interested parties are requested to make their own enquiries to the relevant authorities as to the availability of services.

Local Authority

Great Yarmouth Borough Council

Solicitors

HKB Wiltshires (Great Yarmouth), Ref: Sarah Harris, Tel: 01493 855676

Important Notice to Prospective Buyers:

We draw your attention to the Special Conditions of Sale within the Legal Pack, referring to other charges in addition to the purchase price which may become payable. Such costs may include Search Fees, reimbursement of Sellers costs and Legal Fees, and Transfer Fees amongst others.

Additional Fees

Buyer's Premium - £960 inc VAT payable on exchange of contracts.

Administration Charge - 0.3% inc VAT of the purchase price, subject to a minimum of £1200 inc VAT, payable on exchange of contracts.

Disbursements - Please see the legal pack for any disbursements listed that may become payable by the purchaser on completion.

View Larger Map

Disclaimer: The map preview provided above is for general guidance only and may not accurately reflect the exact location or surrounding buildings. Prospective buyers and interested parties are strongly advised to independently verify the precise location and surroundings before bidding.