For Sale By Auction | 11:00, 11 December 2024 | Lot 37

28 Pauline Street, Ipswich, Suffolk IP2 8DN

Sold After

  • Terraced House
  • 2 Bedrooms
  • Tenure: Freehold

Call the team on 01473 558 888 for more information

Auction Date

Wed 11/12/2024

Auction Time

11:00

Auction Venue

Livestream Auction

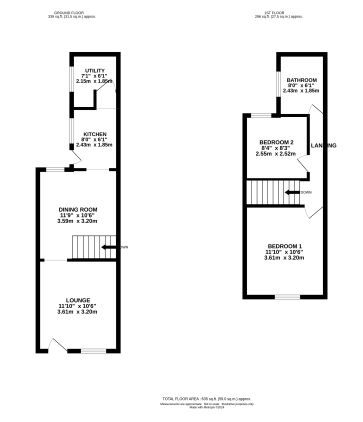
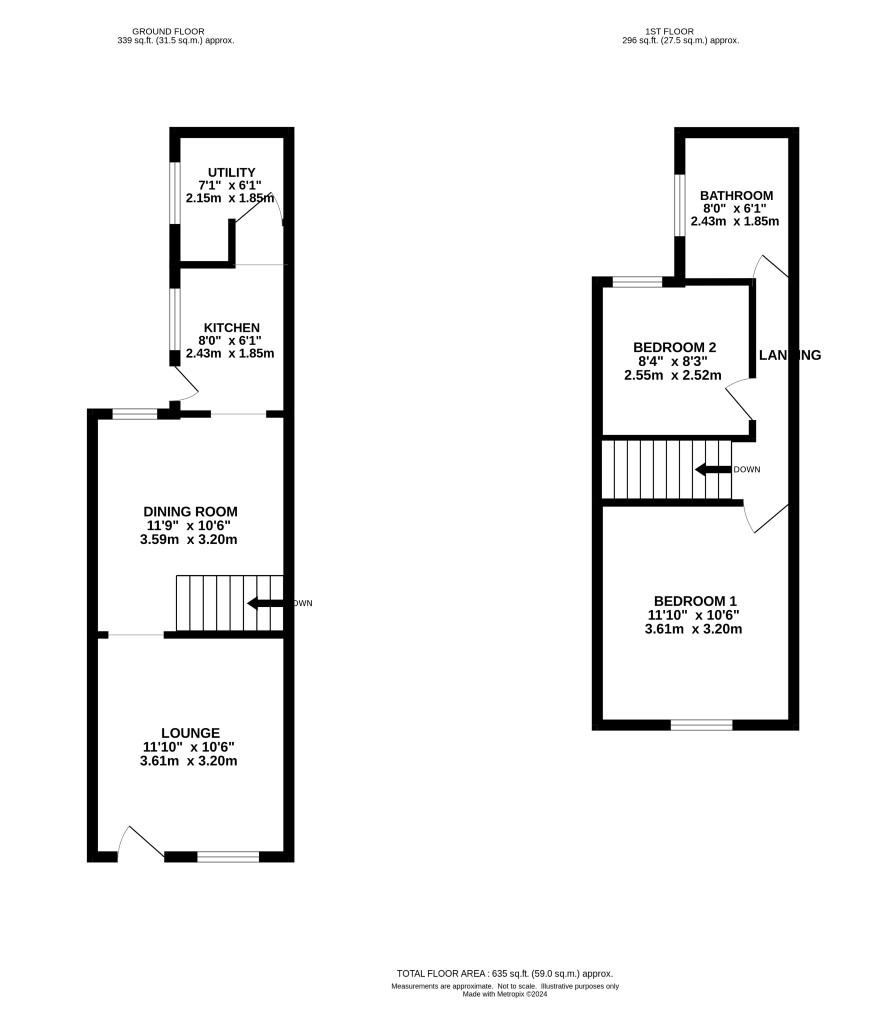
Two bedroom terraced property in need of full refurbishment.

A terraced house situated in a location most convenient for the Town Centre and also a short walk from the railway station. The house includes two double bedrooms, upstairs bathroom, lounge, dining room, kitchen and utility room. The house would benefit from refurbishment throughout but once completed would rent out for £950pcm.

Tenure

Freehold

Council Tax Band

A

Viewing

Open Viewing has been scheduled as follows: Friday 22nd November at 2.00pm Wednesday 27th November at 10.00am BOOKING AN APPOINTMENT IS ESSENTIAL Please call 01473 558888 to make arrangements

Energy Efficiency Rating (EPC)

Current Rating D

Services

Interested parties are requested to make their own enquiries to the relevant authorities as to the availability of services.

Local Authority

Ipswich Borough Council

Solicitors

Watkins Stewart and Ross, Ref: Sarah Simpson, Tel: 01473 226266

Important Notice to Prospective Buyers:

We draw your attention to the Special Conditions of Sale within the Legal Pack, referring to other charges in addition to the purchase price which may become payable. Such costs may include Search Fees, reimbursement of Sellers costs and Legal Fees, and Transfer Fees amongst others.

Additional Fees

Buyer's Premium - £1140 inc VAT payable on exchange of contracts.

Administration Charge - 0.3% inc VAT of the purchase price, subject to a minimum of £1200 inc VAT, payable on exchange of contracts.

Disbursements - Please see the legal pack for any disbursements listed that may become payable by the purchaser on completion.

View Larger Map

Disclaimer: The map preview provided above is for general guidance only and may not accurately reflect the exact location or surrounding buildings. Prospective buyers and interested parties are strongly advised to independently verify the precise location and surroundings before bidding.