Postponed | Lot 79

82 Risbygate Street, Bury St. Edmunds IP33 3AQ

Postponed

  • Town House
  • 3 Bedrooms
  • Tenure: Freehold

Call the team on 01473 558 888 for more information

Auction Date

Wed 11/12/2024

Auction Time

11:00

Auction Venue

Livestream Auction

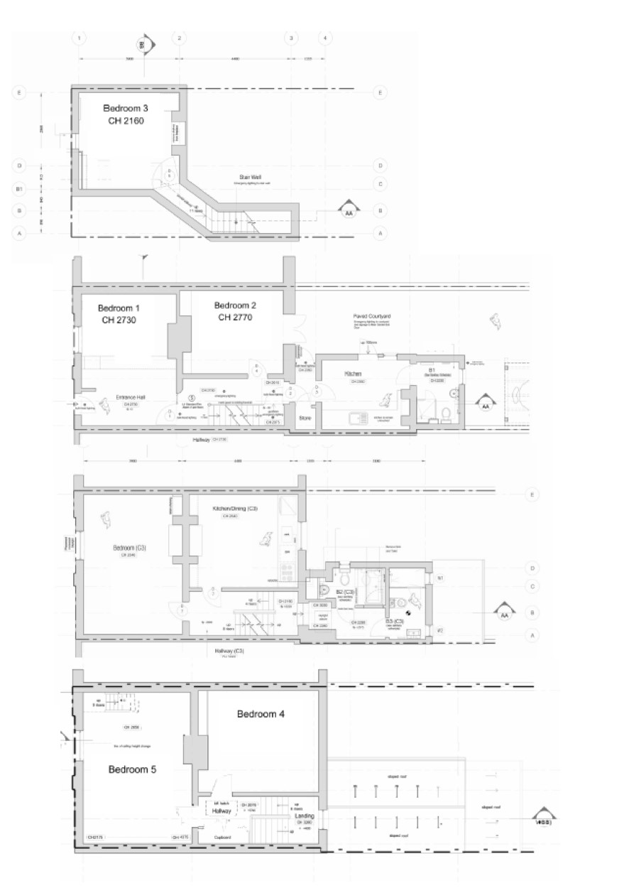
An impressive three storey Grade II listed Victorian town house with outbuilding, located in Bury St Edmunds town centre

Situated just a stone’s throw from the town centre, this Grade II listed townhouse is perfect as a spacious family home or a potential HMO (subject to planning permission). The property offers two kitchens, three bedrooms, a dining room, lounge, bathroom, shower room, w/c, cellar, and garden. An additional outdoor building provides an ideal space for a home office or gym. Bury St Edmunds is a thriving market town located in the heart of East Anglia and offers an excellent range of amenities with schooling in the public and private sectors, extensive shopping and leisure facilities, and cultural amenities. There is good access to the A14, A11(M11) and the railway station offers links to mainline services to London’s Liverpool Street and Kings Cross.

Tenure

Freehold

Services

Interested parties are requested to make their own enquiries to the relevant authorities as to the availability of services.

Local Authority

West Suffolk Council

Solicitors

Atkins Dellow, Ref: Callum Morton

Important Notice to Prospective Buyers:

We draw your attention to the Special Conditions of Sale within the Legal Pack, referring to other charges in addition to the purchase price which may become payable. Such costs may include Search Fees, reimbursement of Sellers costs and Legal Fees, and Transfer Fees amongst others.

Additional Fees

Buyer's Premium - £1140 inc VAT payable on exchange of contracts.

Administration Charge - 0.3% inc VAT of the purchase price, subject to a minimum of £1200 inc VAT, payable on exchange of contracts.

Disbursements - Please see the legal pack for any disbursements listed that may become payable by the purchaser on completion.

View Larger Map

Disclaimer: The map preview provided above is for general guidance only and may not accurately reflect the exact location or surrounding buildings. Prospective buyers and interested parties are strongly advised to independently verify the precise location and surroundings before bidding.