Sold Prior | Lot 68A

39 Railway Road, King's Lynn PE30 1NF

Sold Prior

  • Flat
  • 1 Bedroom
  • Tenure: Leasehold. 199 years from 1st January 2008

Call the team on 01553 777 773 for more information

Auction Date

Wed 11/12/2024

Auction Time

11:00

Auction Venue

Livestream Auction

A one bedroom ground floor flat close to the town centre

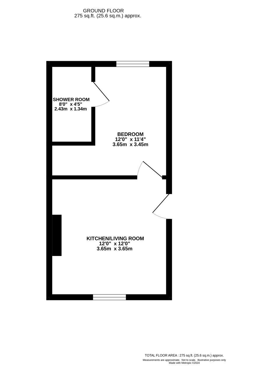
This one bedroom ground floor apartment is located within walking distance of the town centre and is available with vacant possession. The property briefly comprises communal entrance hall, open plan living room/ kitchen, bedroom and shower room. The property is located in the town centre of King's Lynn which has a wide range of amenities including shops, schools and leisure facilities. There is a main line station with rail links to Ely, Cambridge and London's Kings Cross Station.

Tenure

Leasehold. 199 years from 1st January 2008

Accommodation

Open plan living room/ kitchen, bedroom, shower room

Lease details

199 years from 1st Januay 2008

Council Tax Band

A

Important Note for Bidders

At the request of our client we will not be able to register potential bidders until the following steps have been completed:- - A Facial Recognition check for Anti Money Laundering purposes (which we will send on receipt of bidder registration form) - The legal pack has been downloaded from our website and - We have written confirmation from the nominated solicitor that they are instructed to act As a result, we strongly suggest that interested bidders send their bidding registration form to us at their earliest opportunity.

Energy Efficiency Rating (EPC)

Current Rating D

Services

Interested parties are requested to make their own enquiries to the relevant authorities as to the availability of services.

Local Authority

Kings Lynn and West Norfolk Borough Council

Solicitors

TLT (Nationwide), PO BOX 2623, Ref: TLT (Nationwide), Tel: 01179 177777

Important Notice to Prospective Buyers:

We draw your attention to the Special Conditions of Sale within the Legal Pack, referring to other charges in addition to the purchase price which may become payable. Such costs may include Search Fees, reimbursement of Sellers costs and Legal Fees, and Transfer Fees amongst others.

Additional Fees

Buyer's Premium - £1500 inc VAT payable on exchange of contracts.

Administration Charge - 0.3% inc VAT of the purchase price, subject to a minimum of £1200 inc VAT, payable on exchange of contracts.

Disbursements - Please see the legal pack for any disbursements listed that may become payable by the purchaser on completion.

View Larger Map

Disclaimer: The map preview provided above is for general guidance only and may not accurately reflect the exact location or surrounding buildings. Prospective buyers and interested parties are strongly advised to independently verify the precise location and surroundings before bidding.