Postponed | Lot 52

The Old Corner Smithy, New Road, Whissonsett, Dereham, Norfolk NR20 5TA

Postponed

  • Detached House
  • 4 Bedrooms
  • Tenure: Freehold

Call the team on 01603 505 100 for more information

Auction Date

Thu 08/05/2025

Auction Time

11:00

Auction Venue

Livestream Auction

Four bedroom detached house and barns requiring complete refurbishment offering great potential

This property has been in the same ownership for many years and is now to be sold with vacant possession. It is situated on a good size broadly triangular 0.23 acre plot with a range of outbuildings offering redevelopment potential subject to the necessary consents. The property has gas central heating and requires a programme of modernisation and improvement inside and out to realise its full potential. The property is located around five miles south of Fakenham. An exciting opportunity with lots of potential

Tenure

Freehold

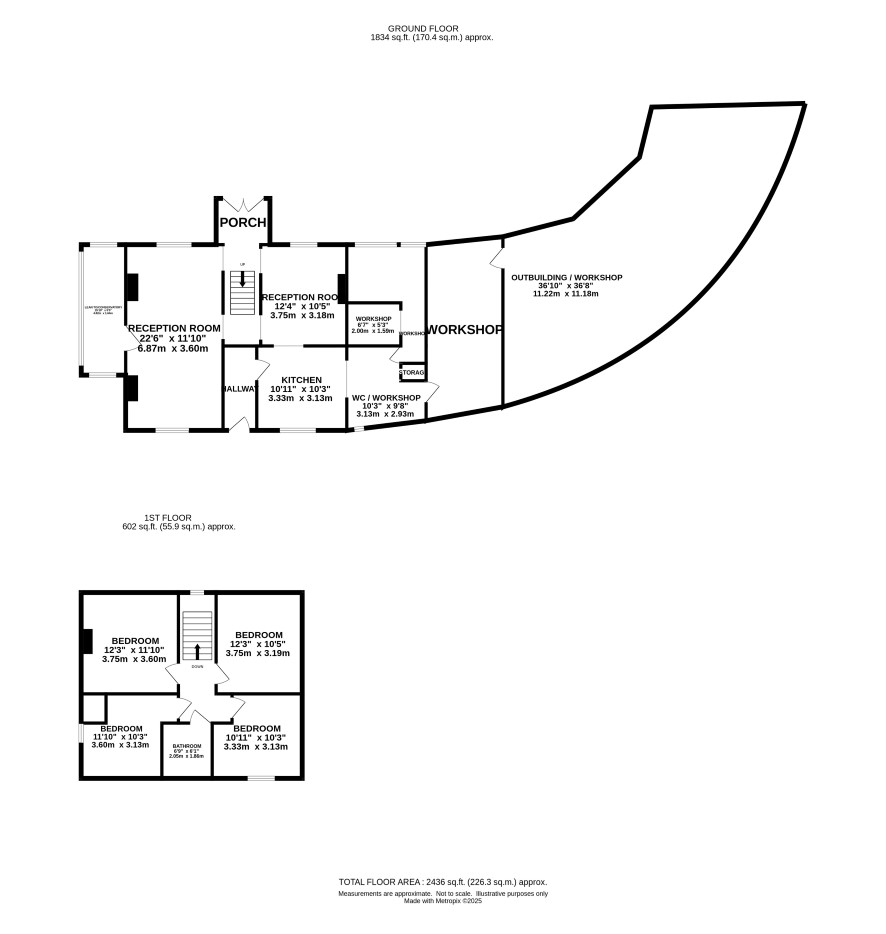
Ground floor

Entrance hall, kitchen, sitting room, dining room, rear porch, wc, conservatory

First floor

Four bedrooms, wet room

Outside

Large rear garden in need of attention, off road parking to rear via Copper Beech Close, attached flint barn, garage, further outbuilding

Viewings

Open viewings are arranged and the next are Thursday 24 April. To book an appointment please contact the Norwich office.

Energy Efficiency Rating (EPC)

Current Rating F

Services

Interested parties are requested to make their own enquiries to the relevant authorities as to the availability of services.

Local Authority

Breckland Council

Solicitors

nplaw, Ref: Gerry Casey, Tel: 01603 222925

Important Notice to Prospective Buyers:

We draw your attention to the Special Conditions of Sale within the Legal Pack, referring to other charges in addition to the purchase price which may become payable. Such costs may include Search Fees, reimbursement of Sellers costs and Legal Fees, and Transfer Fees amongst others.

Additional Fees

Buyer's Premium - £960 inc VAT payable on exchange of contracts.

Administration Charge - £1200 inc VAT payable on exchange of contracts.

Disbursements - Please see the legal pack for any disbursements listed that may become payable by the purchaser on completion.

View Larger Map

Disclaimer: The map preview provided above is for general guidance only and may not accurately reflect the exact location or surrounding buildings. Prospective buyers and interested parties are strongly advised to independently verify the precise location and surroundings before bidding.