Postponed | Lot 41

Flat 7, Bellfosters, Kings Staithe Lane, King's Lynn PE30 1LZ

Postponed

  • Town House
  • 3 Bedrooms
  • Tenure: Leasehold.

Call the team on 01553 777 773 for more information

Auction Date

Thu 08/05/2025

Auction Time

11:00

Auction Venue

Livestream Auction

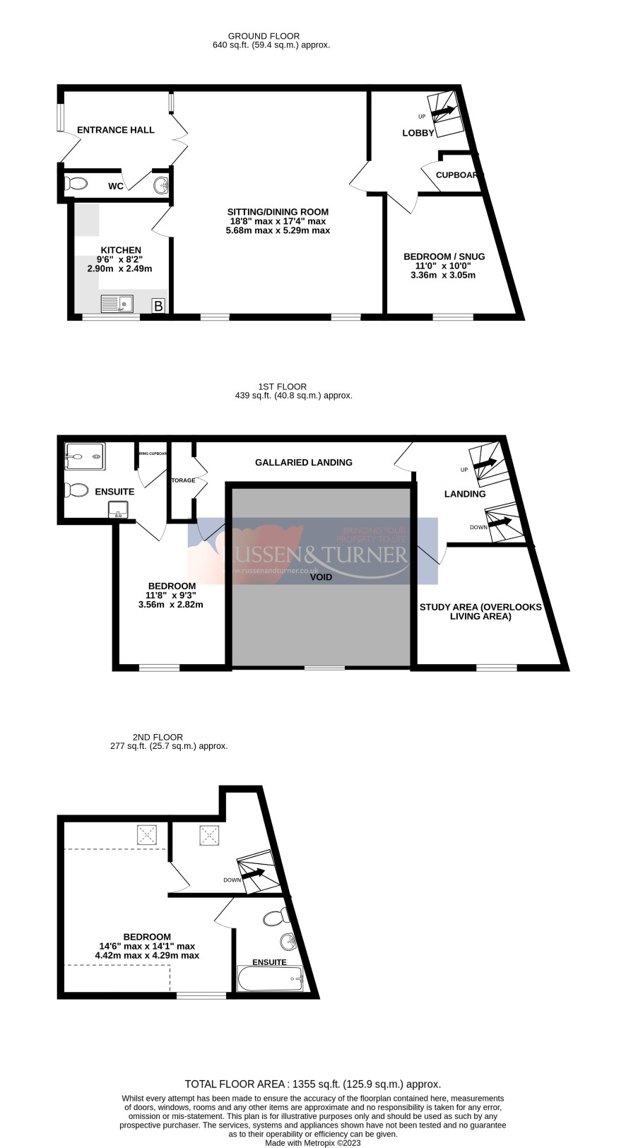
A Grade II Listed three bedroom townhouse in the heart of Kings Lynn town centre

This Grade II listed townhouse is available with vacant possession and would be ideal for someone looking for a spacious property in Kings Lynn town centre. The house has an abundance of character and offers versatile accommodation over three floors. The generous accommodation briefly comprises sitting room with double height ceilings, kitchen, an inner lobby and a bedroom that could make a fantastic snug. To the first floor, the galleried landing offers a different perspective of the sitting room and study area overlooking the sitting room, a generous double bedroom and en-suite completes the accommodation on this level. To the second floor is a double bedroom with another en-suite bathroom. Located in the historic part of Kings Lynn town centre, the property is a short walk away from all amenities, as well as bars and restaurants. There is a bus station with links to Norwich and Peterborough as well as a mainline railway station to Cambridge and London Kings Cross.

Tenure

Leasehold.

Ground Floor

Entrance hall, kitchen, sitting room, bedroom

First Floor

Galleried landing, study area, bedroom with en-suite

Second Floor

Bedroom with en-suite

Lease Details

Term: 999 years from 25 March 1987 (961 years remaining). Ground rent: Please refer to legal pack Service charge: Please refer to legal pack

Council Tax Band

C

Services

Interested parties are requested to make their own enquiries to the relevant authorities as to the availability of services.

Local Authority

Kings Lynn and West Norfolk Borough Council

Solicitors

Hayes and Storr (Kings Lynn), Ref: Melanie Robson, Tel: 01553 778908

Offered in association with

Russen & Turner

Important Notice to Prospective Buyers:

We draw your attention to the Special Conditions of Sale within the Legal Pack, referring to other charges in addition to the purchase price which may become payable. Such costs may include Search Fees, reimbursement of Sellers costs and Legal Fees, and Transfer Fees amongst others.

Additional Fees

Buyer's Premium - £1200 inc VAT payable on exchange of contracts.

Administration Charge - £1200 inc VAT payable on exchange of contracts.

Disbursements - Please see the legal pack for any disbursements listed that may become payable by the purchaser on completion.

View Larger Map

Disclaimer: The map preview provided above is for general guidance only and may not accurately reflect the exact location or surrounding buildings. Prospective buyers and interested parties are strongly advised to independently verify the precise location and surroundings before bidding.