Sold STC | Lot 117

3 Ludgate Causeway, Eye, Suffolk IP23 7NH

Sold STC £210,000

  • Detached House
  • Tenure: Freehold

Call the team on 01473 558 888 for more information

Auction Date

Thu 08/05/2025

Auction Time

11:00

Auction Venue

Livestream Auction

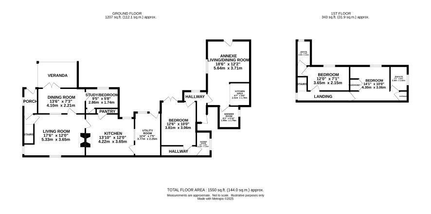
A highly individual detached residence with annexe.

Situated along a quiet no through lane with countryside views is this unique family home with an attached annexe. The main section offers versatile 2/3 bedroom accommodation with 2 reception rooms, kitchen, utility and 3 shower rooms with the annexe providing a further living room/kitchen, bedroom and a shower room. The property is certainly habitable but presents an excellent opportunity to reconfigure and modernise to your own taste. To the front is plenty of parking space, a detached garage/workshop and low maintenance gardens, in all a property that must be viewed to be fully appreciated.

Tenure

Freehold

Viewing

Open Viewings have been scheduled as follows: Wed 23rd April - 2.00 to 2.30 Wed 30th April - 11.00 to 11.30 BOOKING AN APPOINTMENT IS ESSENTIAL Please call 01473 558888 to confirm your attendance.

Council Tax Band

D

Energy Efficiency Rating (EPC)

Current Rating E

Services

Interested parties are requested to make their own enquiries to the relevant authorities as to the availability of services.

Local Authority

Mid Suffolk District Council

Solicitors

Sprake & Kingsley, Ref: Clare Gissing, Tel: 01986 891933

Important Notice to Prospective Buyers:

We draw your attention to the Special Conditions of Sale within the Legal Pack, referring to other charges in addition to the purchase price which may become payable. Such costs may include Search Fees, reimbursement of Sellers costs and Legal Fees, and Transfer Fees amongst others.

Additional Fees

Buyer's Premium - £1380 inc VAT payable on exchange of contracts.

Administration Charge - £1200 inc VAT payable on exchange of contracts.

Disbursements - Please see the legal pack for any disbursements listed that may become payable by the purchaser on completion.

View Larger Map

Disclaimer: The map preview provided above is for general guidance only and may not accurately reflect the exact location or surrounding buildings. Prospective buyers and interested parties are strongly advised to independently verify the precise location and surroundings before bidding.