Postponed | Lot 105

Land adjacent to Rylton House, Mill Lane, Sutton Bridge, Spalding, Lincolnshire PE12 9UE

Postponed

  • Plot
  • Tenure: Freehold

Call the team on 01553 777 773 for more information

Auction Date

Wed 18/06/2025

Auction Time

10:00

Auction Venue

Livestream Auction

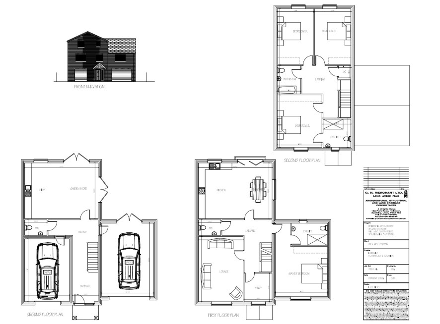
A building plot with Planning Permission for two, four-bedroom detached houses with integral garages.

Planning permission has been granted for two plots, each for a four-bedroom detached house with 2 integral garages. Outline planning permission was granted on 20/04/2022, subject to conditions. A copy the consent and Supporting Drawings plus the Flood Risk Assessment can be seen on the local authority website. Search sholland.gov.uk/planningapplications/H18-0241-22. Previously part of the huge garden of Rylton House, the plots are located in Mill Lane. Sutton Bridge is a large village with a good range of facilities. The larger towns of King's Lynn and Wisbech are both about 10 miles away and the regional centre of Peterborough is about 30 miles away.

Tenure

Freehold

Search sholland.gov.uk/planningapplications/H18-0241-22

Services

Interested parties are requested to make their own enquiries to the relevant authorities as to the availability of services.

Local Authority

South Holland District Council

Solicitors

Mossop and Bowser (Long Sutton), Ref: Sarah Doncaster, Tel: 01406363212

Offered in association with

Phoenix Estate Agents

Important Notice to Prospective Buyers:

We draw your attention to the Special Conditions of Sale within the Legal Pack, referring to other charges in addition to the purchase price which may become payable. Such costs may include Search Fees, reimbursement of Sellers costs and Legal Fees, and Transfer Fees amongst others.

Additional Fees

Buyer's Premium - £1200 inc VAT payable on exchange of contracts.

Administration Charge - £1200 inc VAT payable on exchange of contracts.

Disbursements - Please see the legal pack for any disbursements listed that may become payable by the purchaser on completion.

View Larger Map

Disclaimer: The map preview provided above is for general guidance only and may not accurately reflect the exact location or surrounding buildings. Prospective buyers and interested parties are strongly advised to independently verify the precise location and surroundings before bidding.