For Sale By Auction | 10:00, 18 June 2025 | Lot 82

54 Ashburnham Road, Southend-On-Sea, Essex SS1 1QD

Sold After

  • House of Multiple Occupation
  • 7 Bedrooms
  • Tenure: Freehold

Call the team on 01702 939933 for more information

Auction Date

Wed 18/06/2025

Auction Time

10:00

Auction Venue

Livestream Auction

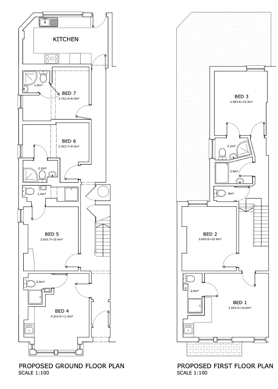
A substantial Freehold seven bedroom Registered HMO in city centre close to university

This large large end terraced house is conveniently located close to the city centre, railway stations and all local amenities. The property is extremely well presented and offers seven bedrooms all with en-suite shower rooms (one not directly connected). The property is currently fully let and produces £4,750 pcm (£57,000 pa).

Tenure

Freehold

Ground Floor

Entrance hall, communal kitchen, dining area with access to communal rear garden. Rooms 4, 5, 6 and 7 - all with en-suite shower rooms

First Floor

Landing with doors to Rooms 1 and 2 both with en-suite shower room Room 3 with attached shower room and separate WC (exclusive use)

Outside

Communal garden to rear.

Council Tax Band

C

Energy Efficiency Rating (EPC)

Current Rating C

Services

Interested parties are requested to make their own enquiries to the relevant authorities as to the availability of services.

Local Authority

Southend on Sea Borough Council

Solicitors

Tolhurst Fisher LLP (Southend), Ref: Ben Stapleton, Tel: 01702 352511

Offered in association with

Allcoat

Important Notice to Prospective Buyers:

We draw your attention to the Special Conditions of Sale within the Legal Pack, referring to other charges in addition to the purchase price which may become payable. Such costs may include Search Fees, reimbursement of Sellers costs and Legal Fees, and Transfer Fees amongst others.

Additional Fees

Buyer's Premium - £1200 inc VAT payable on exchange of contracts.

Administration Charge - £1200 inc VAT payable on exchange of contracts.

Disbursements - Please see the legal pack for any disbursements listed that may become payable by the purchaser on completion.

View Larger Map

Disclaimer: The map preview provided above is for general guidance only and may not accurately reflect the exact location or surrounding buildings. Prospective buyers and interested parties are strongly advised to independently verify the precise location and surroundings before bidding.