Withdrawn | Lot 76

119 Bedells Avenue, Black Notley, Braintree, Essex CM77 8NA

Withdrawn

  • Semi-Detached House
  • 3 Bedrooms
  • Tenure: Freehold

Call the team on 01702 939933 for more information

Auction Date

Wed 18/06/2025

Auction Time

10:00

Auction Venue

Livestream Auction

Spacious three-bedroom semi-detached property offering the perfect opportunity to put your own stamp on it

This well-presented three-bedroom semi-detached home is ideally situated in a peaceful cul-de-sac within the sought-after village of Black Notley. The property features a spacious 17' lounge and a recently refitted 17' kitchen/diner, perfect for family living. The generously sized, unoverlooked rear garden offers excellent privacy and outdoor potential. The property also benefits from three bedrooms, a family bathroom, garage with allocated parking. Black Notley is a charming village located just outside Braintree in Essex. Known for its peaceful surroundings, the village offers a blend of countryside living with convenient access to local amenities. Residents enjoy picturesque walking trails, a village hall, a local pub, and close proximity to the Notley Country Park. With excellent transport links—including nearby Cressing and Braintree train stations providing direct routes to London—Black Notley is ideal for families, commuters, and those seeking a quieter lifestyle with urban connections.

Tenure

Freehold

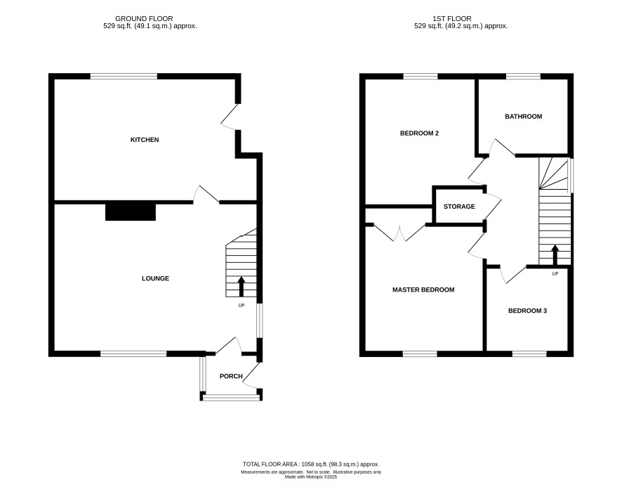
Ground Floor Accommodation

Porch, Lounge: - 5.23m x 3.73m, Kitchen / Diner: - 5.26m reducing to 4.57m x 3.23m

First Floor Accommodation

Master Bedroom: - 3.30m x 3.30m, Bedroom Two: - 3.25m x 3.18m, Bedroom Three: - 2.08m x 1.80m, Bathroom

Council Tax Band

C

Energy Efficiency Rating (EPC)

Current Rating D

Services

Interested parties are requested to make their own enquiries to the relevant authorities as to the availability of services.

Local Authority

Braintree District Council

Solicitors

KMA Solicitors, Ref: Kem Amobi, Tel: 01473 760046

Important Notice to Prospective Buyers:

We draw your attention to the Special Conditions of Sale within the Legal Pack, referring to other charges in addition to the purchase price which may become payable. Such costs may include Search Fees, reimbursement of Sellers costs and Legal Fees, and Transfer Fees amongst others.

Additional Fees

Buyer's Premium - £1140 inc VAT payable on exchange of contracts.

Administration Charge - £1200 inc VAT payable on exchange of contracts.

Disbursements - Please see the legal pack for any disbursements listed that may become payable by the purchaser on completion.

View Larger Map

Disclaimer: The map preview provided above is for general guidance only and may not accurately reflect the exact location or surrounding buildings. Prospective buyers and interested parties are strongly advised to independently verify the precise location and surroundings before bidding.