For Sale By Auction | 10:00, 18 June 2025 | Lot 39

6 and 6b Hungate, Beccles, Norfolk NR34 9TL

Sold After

  • Mixed Use
  • Tenure: Freehold

Call the team on 01603 505 100 for more information

Auction Date

Wed 18/06/2025

Auction Time

10:00

Auction Venue

Livestream Auction

A vacant shop and self contained maisonette currently let to an established tenant paying £7,500 pa

This prominent grade ll listed freehold premises consists of a vacant lock up shop and a spacious first and second floor maisonette which is currently let on an assured shorthold tenancy £625 pcm. Once let the shop and flat would provide a double digit income. There is an enclosed courtyard area with outside toilet facilities for the use of the shop. Located a few steps from the town centre the property is surrounded by well respected local stores and offices and to there is a public car park to the rear.

Tenure

Freehold

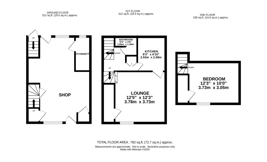
Ground Floor

Shop with kitchenette, rear access to courtyard, outside wc

First and Second Floors

First Floor Landing, kitchen, lounge, stairs to second floor double bedroom.

Business Rates

1 April 2023 to present: £3,300 (Exempt whilst vacant)

Viewings

Viewings are available by appointment only. The next are on Tuesday 24 June. To book a viewing please contact the Norwich office.

Require a Mortgage or Loan?

We strongly advise that your finance is fully approved prior to bidding. Please be aware that an Agreement in Principle (AIP) may not be sufficient. Should your lender be unable to proceed post-auction, you risk losing your deposit and incurring significant costs. To ensure you are fully prepared, contact our team today on 01603 505 100 to discuss auction finance options and secure funding before bidding.

Services

Interested parties are requested to make their own enquiries to the relevant authorities as to the availability of services.

Local Authority

Waveney District Council

Solicitors

Cozens-Hardy LLP, Ref: Dan Evans, Tel: 01603 724676

Important Notice to Prospective Buyers:

We draw your attention to the Special Conditions of Sale within the Legal Pack, referring to other charges in addition to the purchase price which may become payable. Such costs may include Search Fees, reimbursement of Sellers costs and Legal Fees, and Transfer Fees amongst others.

Additional Fees

Buyer's Premium - £600 inc VAT payable on exchange of contracts.

Administration Charge - £1200 inc VAT payable on exchange of contracts.

Disbursements - Please see the legal pack for any disbursements listed that may become payable by the purchaser on completion.

View Larger Map

Disclaimer: The map preview provided above is for general guidance only and may not accurately reflect the exact location or surrounding buildings. Prospective buyers and interested parties are strongly advised to independently verify the precise location and surroundings before bidding.