Sold Prior | Lot 56

53B River View, Chadwell St. Mary, Grays, Essex RM16 4BJ

Sold Prior

  • Flat
  • Tenure: Leasehold. 125 years from 19 July 2019

Call the team on 01702 939933 for more information

Auction Date

Wed 10/09/2025

Auction Time

10:00

Auction Venue

Livestream Auction

A 2nd floor Flat offered as an investment as subject to an existing Shorthold Tenancy at £550 PCM

A spacious Leasehold 2nd floor flat one bedroom Flat, with some 119 years remaining on the Lease situated in a popular position within Chadwell St Mary. Tilbury Town and Grays Railway stations are 1.4 and 1.9 miles distant, respectively. Local shops are nearby but Grays Town Centre is a short drive away. The flat is let on an Assured Shorthold Tenancy and the current Tenancy has expired. The Current Rent is £550 PCM, we feel that there is good scope for a rent increase.

Tenure

Leasehold. 125 years from 19 July 2019

Communal entrance Door and staircase (only one other flat) leads up to the

Second Floor

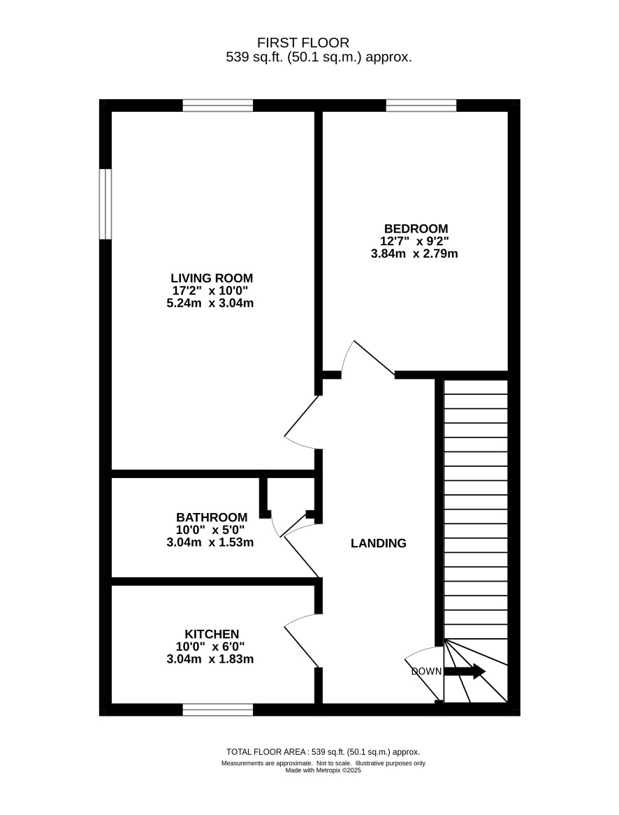
Entrance hall 14'4" x 2'6" Living room 17.'3 x 14'3" (Max as sloping ceilings) Bedroom 12'7" x 9'2" Kitchen 10' x 6' Bathroom 9'4" x 5'

Council Tax Band

B

Leasehold Information

Term: 119 years remaining Annual ground rent amount : £100

Energy Efficiency Rating (EPC)

Current Rating C

Services

Interested parties are requested to make their own enquiries to the relevant authorities as to the availability of services.

Local Authority

Thurrock Council

Solicitors

Spire Solicitors LLP (Norwich), Ref: Tracy Guest, Tel: 01603 886221

Important Notice to Prospective Buyers:

We draw your attention to the Special Conditions of Sale within the Legal Pack, referring to other charges in addition to the purchase price which may become payable. Such costs may include Search Fees, reimbursement of Sellers costs and Legal Fees, and Transfer Fees amongst others.

Additional Fees

Buyer's Premium - £1200 inc VAT payable on exchange of contracts.

Administration Charge - £1200 inc VAT payable on exchange of contracts.

Disbursements - Please see the legal pack for any disbursements listed that may become payable by the purchaser on completion.