For Sale By Auction | 10:00, 10 September 2025 | Lot 86

97 Tennyson Avenue, King's Lynn PE30 2QJ

Sold £269,000

  • House of Multiple Occupation
  • 6 Bedrooms
  • Tenure: Freehold

Call the team on 01553 777 773 for more information

Auction Date

Wed 10/09/2025

Auction Time

10:00

Auction Venue

Livestream Auction

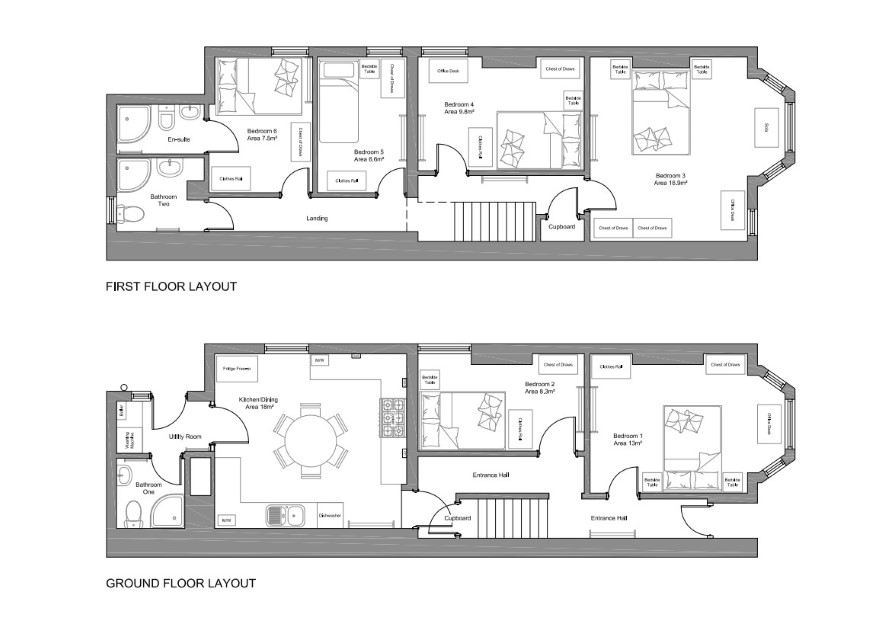
A six bedroom HMO (House of multiple occupancy) near to Kings Lynn town centre and railway station currently producing £35,400 pa (£2,950 pcm)

This six bedroom fully licenced HMO would be an ideal investment purchase, with all six bedrooms let producing £35,400 pa (£2,950 pcm) The breakdown of each room are as follows, Room 1 let at £500pcm, Room 2 let at £450pcm, Room 3 let at £550pcm, Room 4 let at £500pcm, Room 5 let at £425pcm, Room 6 let at £525pcm. The property is laid out with rooms one and two on the ground floor, along with kitchen/ dining area, utility room and bathroom. On the first floor there are the four rooms with an en-suite to room six and a further bathroom. Outside there is parking to rear and a courtyard garden. The property is located in the Walks area of kings Lynn, near to the town centre with its range of shopping facilities and mainline railway station to London Kings Cross and Cambridge.

Tenure

Freehold

Ground Floor

Rooms 1 & 2, kitchen/ dining area, utility room, bathroom

First Floor

Rooms 3, 4, 5 and 6, (en-suite to room 6) bathroom

Outside

Parking to rear, courtyard garden

Energy Efficiency Rating (EPC)

Current Rating D

Services

Interested parties are requested to make their own enquiries to the relevant authorities as to the availability of services.

Local Authority

Kings Lynn and West Norfolk Borough Council

Solicitors

Ward Gethin Archer (Kings Lynn - Regis Place), Ref: Anna Hall, Tel: 01553 660033

Offered in association with

Longsons (Swaffham)

Important Notice to Prospective Buyers:

We draw your attention to the Special Conditions of Sale within the Legal Pack, referring to other charges in addition to the purchase price which may become payable. Such costs may include Search Fees, reimbursement of Sellers costs and Legal Fees, and Transfer Fees amongst others.

Additional Fees

Buyer's Premium - £1200 inc VAT payable on exchange of contracts.

Administration Charge - £1200 inc VAT payable on exchange of contracts.

Disbursements - Please see the legal pack for any disbursements listed that may become payable by the purchaser on completion.