For Sale By Auction | 10:00, 10 September 2025 | Lot 5

Hobbers Cottage, The Street, Pulham St. Mary, Diss, Norfolk IP21 4RD

Sold £111,000

  • Semi-Detached Bungalow
  • 1 Bedroom
  • Tenure: Freehold

Call the team on 01603 505 100 for more information

Auction Date

Wed 10/09/2025

Auction Time

10:00

Auction Venue

Livestream Auction

One bedroom bungalow in need of some modernisation after becoming vacant from tenants. Situated in the centre of the popular village of Pulham St. Mary.

This quaint one bedroom cottage is a single storey building situated in the centre of the popular village of Pulham St. Mary. The cottage is located opposite the local church on The Street and has been tenanted for a number of years recently becoming vacant. The property is in need of some modernisation although the owner has recently decorated throughout. To the rear of the property there is a parking space and an enclosed south facing garden. This would be an ideal project for a home owner or investment purchase as once updated has the potential to yield £9,000 pa. The neighbouring property known as 'Samba' which is tenanted is also being offered for sale in this auction and could be purchased together if discussed prior to auction. NB: There is a small flying freehold at the property.

Tenure

Freehold

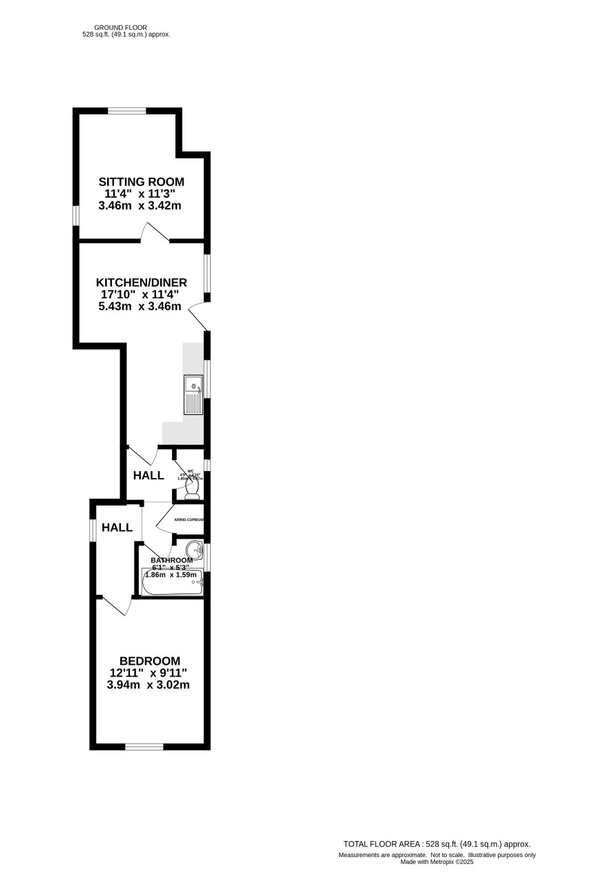
Accommodation

Kitchen/diner, sitting room, inner hall, bathroom, separate w.c., bedroom

Exterior

Courtyard frontage with access to the side entrance door. Access leads to a fenced rear garden and gate leads to parking area.

Council Tax Band

A

Viewings

Viewings are being arranged by appointment only on the following days: Thursday 14 August Wednesday 20th August Friday 29th August Thursday 4th September To book your appointment please call the Norwich office.

Energy Efficiency Rating (EPC)

Current Rating E

Services

Interested parties are requested to make their own enquiries to the relevant authorities as to the availability of services.

Local Authority

South Norfolk Council

Solicitors

Ashtons Legal (Norwich), Ref: Claire Beckett, Tel: 01603 703078

Important Notice to Prospective Buyers:

We draw your attention to the Special Conditions of Sale within the Legal Pack, referring to other charges in addition to the purchase price which may become payable. Such costs may include Search Fees, reimbursement of Sellers costs and Legal Fees, and Transfer Fees amongst others.

Additional Fees

Buyer's Premium - £960 inc VAT payable on exchange of contracts.

Administration Charge - £1200 inc VAT payable on exchange of contracts.

Disbursements - Please see the legal pack for any disbursements listed that may become payable by the purchaser on completion.