For Sale By Auction | 10:00, 10 September 2025 | Lot 54

11 St. Swithun Street, Winchester, Hampshire SO23 9JP

Sold After

  • Terraced House
  • 2 Bedrooms
  • Tenure: Freehold

Call the team on 01702 939933 for more information

Auction Date

Wed 10/09/2025

Auction Time

10:00

Auction Venue

Livestream Auction

Attractive period freehold terraced house in the centre of the historic and picturesque city of Winchester. Vacacnnt upon Completion

Ideally situated in the centre of the city and in the Winchester Conservation area this red-brick period house offers excellent accommodation over four floors. There is a rear garden bounded at the rear by the old city wall (Grade II Listed). A residents only parking permit scheme exists. Please note there is currently a tenant in occupation. S21 Notice expires 10th October 2025, but it has been agreed that the tenants will be leaving on 10th September 2025.. The property will be sold with Vacant Possession.

Tenure

Freehold

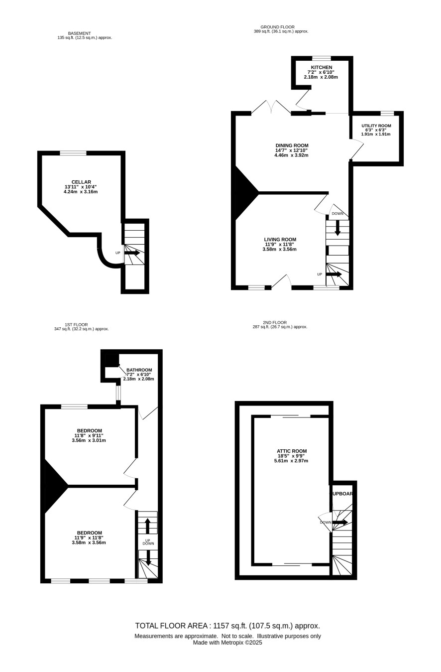
Ground Floor

Lounge 14'4" x 11'9" Dining Room 13'11 x 9'10" Kitchen 9'9" x 7" Utility room 4'7" x 4'7"

First Floor

Bedroom 1 14'7" x 11'10" Bedroom 2 10'5" x 10' Bathroom/WC 9'9" x 4'10"

Second Floor

Attic Room 21' x 11'5"

Basement

Cellar 18'9" x 10'4 (Max)

Outside

Compact rear garden with city wall to the rear.

Council Tax Band

E

Energy Efficiency Rating (EPC)

Current Rating E

Services

Interested parties are requested to make their own enquiries to the relevant authorities as to the availability of services.

Local Authority

Winchester City Council

Solicitors

Jefferies Solicitors, Ref: David Parker, Tel: 01702 443479

Offered in association with

auction House Sussex and Hampshire

Important Notice to Prospective Buyers:

We draw your attention to the Special Conditions of Sale within the Legal Pack, referring to other charges in addition to the purchase price which may become payable. Such costs may include Search Fees, reimbursement of Sellers costs and Legal Fees, and Transfer Fees amongst others.

Additional Fees

Buyer's Premium - £1200 inc VAT payable on exchange of contracts.

Administration Charge - £1200 inc VAT payable on exchange of contracts.

Disbursements - Please see the legal pack for any disbursements listed that may become payable by the purchaser on completion.