For Sale By Auction | 10:00, 10 September 2025 | Lot 108

23 Avenue Road, Gorleston, Great Yarmouth, Norfolk NR31 6NZ

Sold After

  • Terraced House
  • 3 Bedrooms
  • Tenure: Freehold

Call the team on 01603 505 100 for more information

Auction Date

Wed 10/09/2025

Auction Time

10:00

Auction Venue

Livestream Auction

Three bedroom bay fronted mid terrace house

This bay fronted three bedroom mid terrace house extends to around 89 sq/m. It has been in the same ownership for nearly twenty years and is now to be sold with vacant possession. It has double glazing, gas fired central heating and is in good decorative order. It is a short walk north of the town centre near a comprehensive range of services and amenities.

Tenure

Freehold

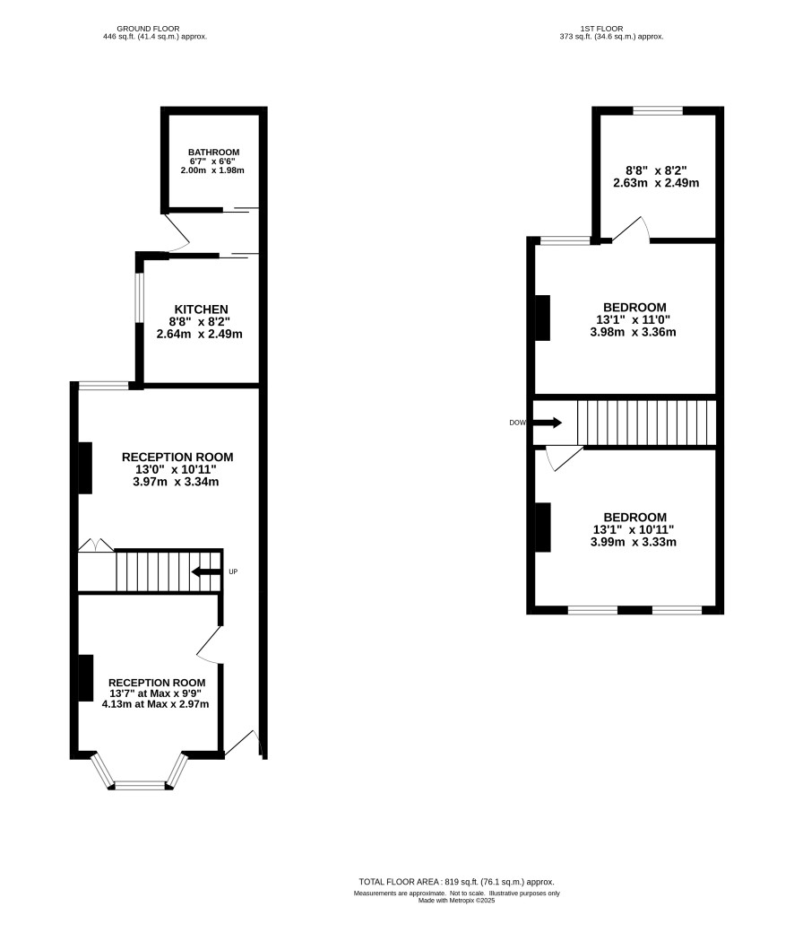
Ground floor

Entrance hall, living room, dining room, kitchen, bathroom, rear entrance lobby

First floor

Three bedrooms

Outside

Enclosed south facing rear garden with large timber and felt garden shed, timber gate providing access to rear service passageway. Small front garden with low level brick built wall and wrought iron hand gate.

Council Tax Band

B

Viewings

We have viewings arranged for the following dates: Friday 29th August Monday 1st September Friday 5th September Monday 8th September Please call the Norwich Office to book your appointment time.

Energy Efficiency Rating (EPC)

Current Rating D

Services

Interested parties are requested to make their own enquiries to the relevant authorities as to the availability of services.

Local Authority

Great Yarmouth Borough Council

Solicitors

HKB Wiltshires (Great Yarmouth), Ref: Rachael Roll, Tel: 01493 855676

Important Notice to Prospective Buyers:

We draw your attention to the Special Conditions of Sale within the Legal Pack, referring to other charges in addition to the purchase price which may become payable. Such costs may include Search Fees, reimbursement of Sellers costs and Legal Fees, and Transfer Fees amongst others.

Additional Fees

Administration Charge - £1200 inc VAT payable on exchange of contracts.

Disbursements - Please see the legal pack for any disbursements listed that may become payable by the purchaser on completion.