For Sale By Auction | 10:00, 10 September 2025 | Lot 52

64 St. Philips Road, Newmarket, Suffolk CB8 0EN

Sold £153,500

  • Terraced House
  • 2 Bedrooms
  • Tenure: Freehold

Call the team on 01223 483445 for more information

Auction Date

Wed 10/09/2025

Auction Time

10:00

Auction Venue

Livestream Auction

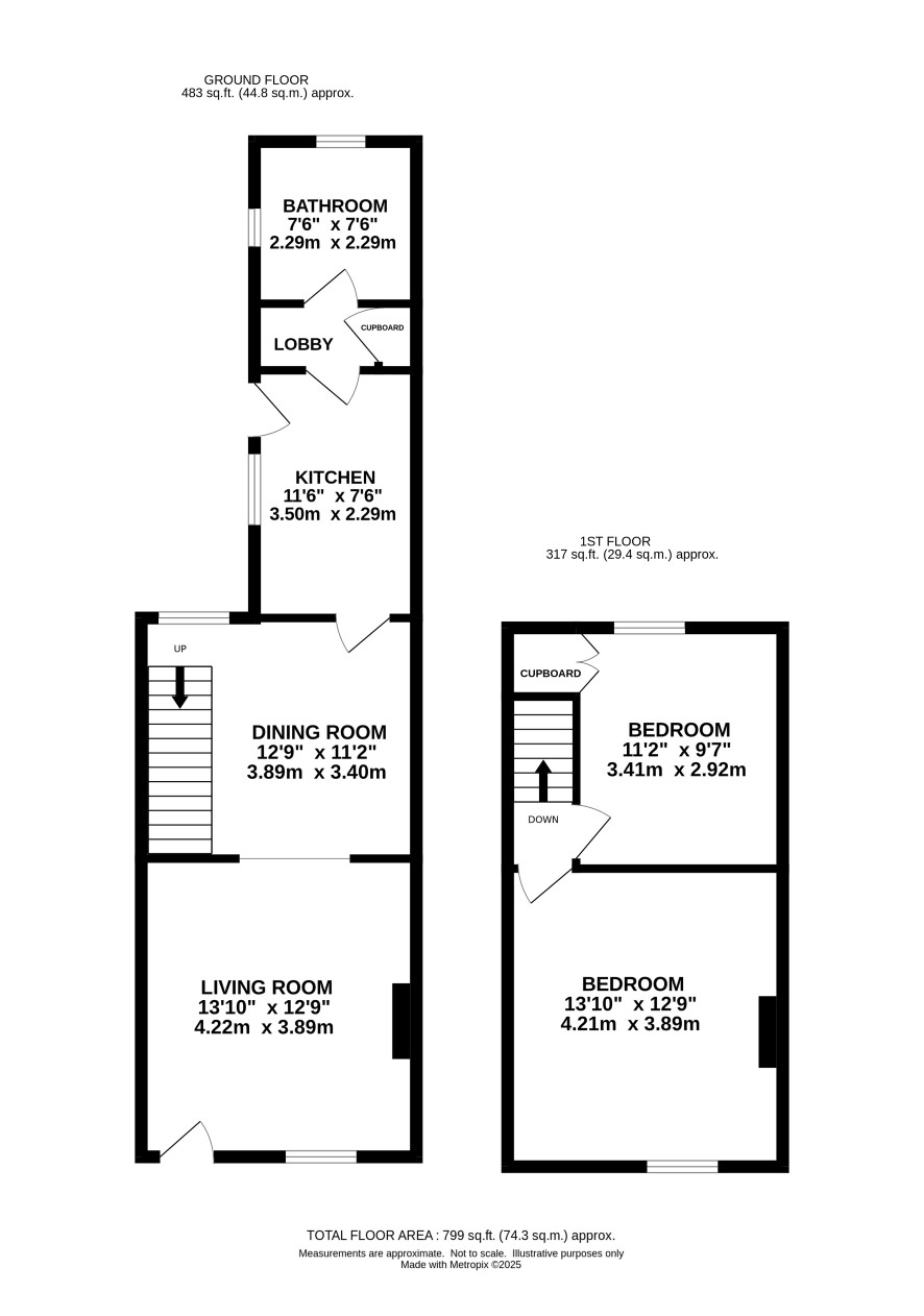
Two bedroom terrace property in need of refurbishment in the popular town of Newmarket

This two bedroom terrace property is in need of refurbishment and would be suitable for an investor or an owner occupier looking for a renovation project. The ground floor comprises a living room, dining room, kitchen, utility space and downstairs bathroom. On the first floor there are two good sized double bedrooms. There is a good size garden to the rear of the property and there is on street parking available. King Edward VII Road is located just 1 mile from Newmarket High Street where there are a range of amenities. Newmarket station is also less than a 10 minute drive away where there is a mainline train into Cambridge and Ipswich.

Tenure

Freehold

Downstairs Accomodation

Lounge, dining room, kitchen, utility space, bathroom.

Upstairs Accomodation

Two double bedrooms.

Outside

Small front garden and large rear garden.

Council Tax Band

B

Energy Efficiency Rating (EPC)

Current Rating D

Services

Interested parties are requested to make their own enquiries to the relevant authorities as to the availability of services.

Local Authority

West Suffolk Council

Solicitors

Flint Bishop Conveyancing, Pinnacle Building, Ref: Flint Bishop Conveyancing, Tel: 0113 4570270

Important Notice to Prospective Buyers:

We draw your attention to the Special Conditions of Sale within the Legal Pack, referring to other charges in addition to the purchase price which may become payable. Such costs may include Search Fees, reimbursement of Sellers costs and Legal Fees, and Transfer Fees amongst others.

Additional Fees

Buyer's Premium - £1560 inc VAT payable on exchange of contracts.

Administration Charge - £1200 inc VAT payable on exchange of contracts.

Disbursements - Please see the legal pack for any disbursements listed that may become payable by the purchaser on completion.