Withdrawn | Lot 70

5, 5A & 5B Norwich Road, Ipswich, Suffolk IP1 2ET

Withdrawn

  • Mixed Use
  • 3 Bedrooms
  • Tenure: Freehold

Call the team on 01473 558 888 for more information

Auction Date

Wed 10/09/2025

Auction Time

10:00

Auction Venue

Livestream Auction

A mixed use investment producing a high annual rental income

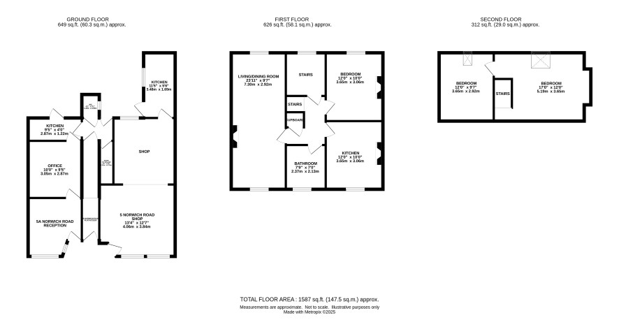
On the western fringe of the town centre is this mixed unit investment comprising two retail units with an independently accessed three bedroom duplex flat above. The two retail units are both let on six year leases from 2024 at rents of £4,200 and £8,400 per annum respectively while the flat is let on an Assured Shorthold Tenancy which is holding over at a rent of £900 per calendar month. With a total annual income of £23,500 which represents 11.7% of the low Guide Price this is certainly a great investment opportunity.

Tenure

Freehold

Business Rates

According to the Valuation office website, 5 and 5A Norwich Road has a rateable value of £8,200 (1 April 2023 to present)

Council Tax Band - 5B Norwich Road

A

Energy Efficiency Rating (EPC)

Current Rating E

Services

Interested parties are requested to make their own enquiries to the relevant authorities as to the availability of services.

Local Authority

Ipswich Borough Council

Solicitors

TG Collins Solicitors (Ipswich), Ref: Tanisha Brown, Tel: 01473 932016

Important Notice to Prospective Buyers:

We draw your attention to the Special Conditions of Sale within the Legal Pack, referring to other charges in addition to the purchase price which may become payable. Such costs may include Search Fees, reimbursement of Sellers costs and Legal Fees, and Transfer Fees amongst others.

Additional Fees

Buyer's Premium - £1140 inc VAT payable on exchange of contracts.

Administration Charge - £1200 inc VAT payable on exchange of contracts.

Disbursements - Please see the legal pack for any disbursements listed that may become payable by the purchaser on completion.