Postponed | Lot 83

6 Honeysuckle Close, Lowestoft, Suffolk NR33 7EJ

Postponed

  • Bungalow
  • 2 Bedrooms
  • Tenure: Freehold

Call the team on 01603 505 100 for more information

Auction Date

Wed 10/09/2025

Auction Time

10:00

Auction Venue

Livestream Auction

Vacant two bedroom detached bungalow situated in a quiet residential area of Lowestoft

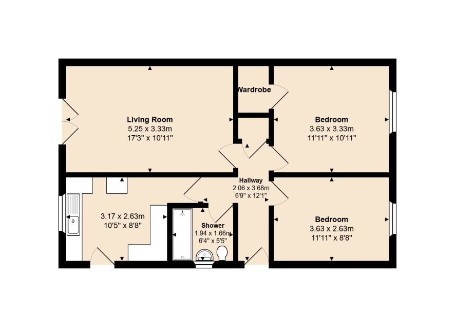
This vacant two bedroom bungalow comprises two well-proportioned bedrooms, a good-sized living room, kitchen, and shower room. Benefiting from an enclosed rear garden, conservatory, and separate garage, this property provides plenty of scope for modernisation and redevelopment or extension (STPP). Ideal for owner occupation or investment opportunity, located close to local amenities and transport links.

Tenure

Freehold

Accommodation

Hall, living room, kitchen, two bedrooms, garden room/conservatory, shower room

Outside

Front and rear garden, separate garage

Council Tax Band

B

Viewings

Viewings are available on Friday 29th August, Tuesday 2nd September and Thursday 4th September. Please call our Norwich office to make an appointment on the appropriate viewing day.

Energy Efficiency Rating (EPC)

Current Rating E

Services

Interested parties are requested to make their own enquiries to the relevant authorities as to the availability of services.

Local Authority

East Suffolk Council

Solicitors

Enact Conveyancing, PO Box Hk3, Ref: Enact Conveyancing, Tel: 0344 244 3282

Important Notice to Prospective Buyers:

We draw your attention to the Special Conditions of Sale within the Legal Pack, referring to other charges in addition to the purchase price which may become payable. Such costs may include Search Fees, reimbursement of Sellers costs and Legal Fees, and Transfer Fees amongst others.

Additional Fees

Buyer's Premium - £1560 inc VAT payable on exchange of contracts.

Administration Charge - £1200 inc VAT payable on exchange of contracts.

Disbursements - Please see the legal pack for any disbursements listed that may become payable by the purchaser on completion.