For Sale By Auction | 10:00, 10 September 2025 | Lot 14a

26 Esdelle Street, Norwich, Norfolk NR3 3BN

Sold £173,000

  • Terraced House
  • 3 Bedrooms
  • Tenure: Freehold

Call the team on 01603 505 100 for more information

Auction Date

Wed 10/09/2025

Auction Time

10:00

Auction Venue

Livestream Auction

This three bedroom terraced house within walking distance of Norwich city centre

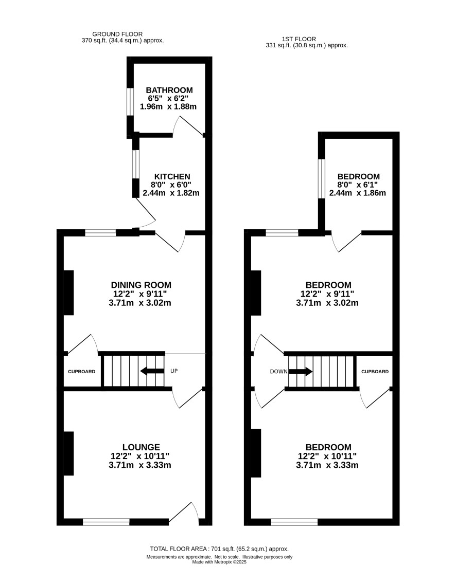
Ideal for owner occupiers and investors is this three bedroom Victorian terrace having recently undergone remedial work and decoration and situated within close proximity of local amenities and Norwich city centre. Accommodation comprises: Sitting room, dining room - opening into kitchen area and ground floor bathroom. On the first floor two double bedrooms off landing with third bedroom off bedroom two. Mostly, upvc double glazing and un-bisected south facing rear garden.

Tenure

Freehold

Ground floor

Sitting room, dining room opening into kitchen area, door to side and ground floor bathroom.

First Floor

Two double bedrooms off landing with 3rd bedroom off bedroom two.

Outside

Enclosed rear garden with pedestrian gate to the side.

Council Tax Band

A

Viewings

These have been arranged for Monday 8th September - APPOINTMENT ESSENTIAL - please call our office on 01603 505100 and a slot can be allocated to you.

Energy Efficiency Rating (EPC)

Current Rating D

Services

Interested parties are requested to make their own enquiries to the relevant authorities as to the availability of services.

Local Authority

Norwich City Council

Solicitors

Kenneth Bush Solicitors, Ref: Hayley Wright, Tel: 01553 692233

Offered in association with

Websters Estate Agents

Important Notice to Prospective Buyers:

We draw your attention to the Special Conditions of Sale within the Legal Pack, referring to other charges in addition to the purchase price which may become payable. Such costs may include Search Fees, reimbursement of Sellers costs and Legal Fees, and Transfer Fees amongst others.

Additional Fees

Buyer's Premium - £960 inc VAT payable on exchange of contracts.

Administration Charge - £1200 inc VAT payable on exchange of contracts.

Disbursements - Please see the legal pack for any disbursements listed that may become payable by the purchaser on completion.