For Sale By Auction | 10:00, 22 October 2025 | Lot 61

3 Holway Road, Upper Sheringham, Sheringham, Norfolk NR26 8QH

Sold £300,500

  • Detached House
  • 3 Bedrooms
  • Tenure: Freehold

Call the team on 01603 505 100 for more information

Auction Date

Wed 22/10/2025

Auction Time

10:00

Auction Venue

Livestream Auction

New build fire damaged three bedroom detached house on the North Norfolk coast

Known as Skylarks this modern three bedroom detached house has around 109 sq/m of accommodation and was built by Norfolk Homes in 2023 as part of the Seawood development. It is located adjoining woodland around a mile south of the town centre near a comprehensive range of services and amenities. On 13th January 2025 the first floor was damaged by a fire and so the property would suit a builder / investor who can take on the project to refurbish the affected areas. It benefits from off road parking, double glazing and gas fired central heating. On instruction of an executor

Tenure

Freehold

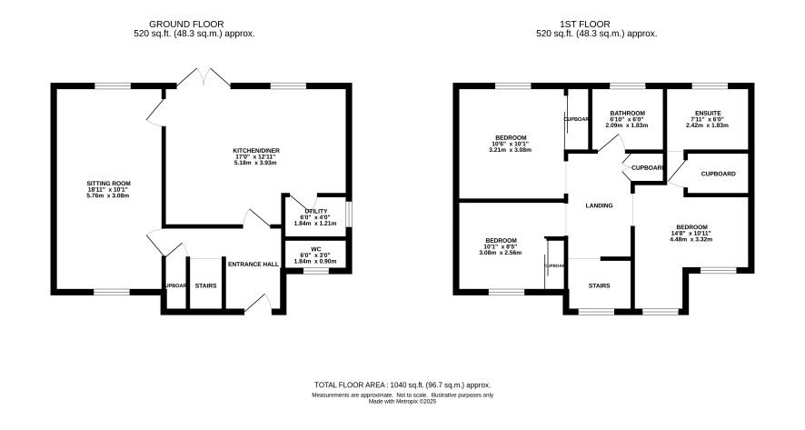
Ground floor

Entrance hall, wc, kitchen / dining room, utility room, sitting room

First floor

Landing, three bedrooms, bathroom

Outside

Rear garden, attached garage, off road parking

Viewings

Viewings are by appointment only and available on Monday 13 October. Please call the Norwich office to book an appointment.

Note

There is a restriction on the title documents requiring the purchaser to enter into a Deed of Covenant with the freehold management company. Details will be included in the pack.

Energy Efficiency Rating (EPC)

Current Rating B

Services

Interested parties are requested to make their own enquiries to the relevant authorities as to the availability of services.

Local Authority

North Norfolk District Council

Solicitors

Hayes and Storr (Sheringham), Ref: Debbie Foley, Tel: 01263 825959

Important Notice to Prospective Buyers:

We draw your attention to the Special Conditions of Sale within the Legal Pack, referring to other charges in addition to the purchase price which may become payable. Such costs may include Search Fees, reimbursement of Sellers costs and Legal Fees, and Transfer Fees amongst others.

Additional Fees

Administration Charge - £1200 inc VAT payable on exchange of contracts.

Disbursements - Please see the legal pack for any disbursements listed that may become payable by the purchaser on completion.

View Larger Map

Disclaimer: The map preview provided above is for general guidance only and may not accurately reflect the exact location or surrounding buildings. Prospective buyers and interested parties are strongly advised to independently verify the precise location and surroundings before bidding.