For Sale By Auction | 10:00, 22 October 2025 | Lot 58

Thetford United Reform Church, Earls Street, Thetford, Norfolk IP24 2AD

Sold £211,000

  • Place of Worship
  • Tenure: Freehold

Call the team on 01603 505 100 for more information

Auction Date

Wed 22/10/2025

Auction Time

10:00

Auction Venue

Livestream Auction

A former place of worship now redundant with redevelopment potential

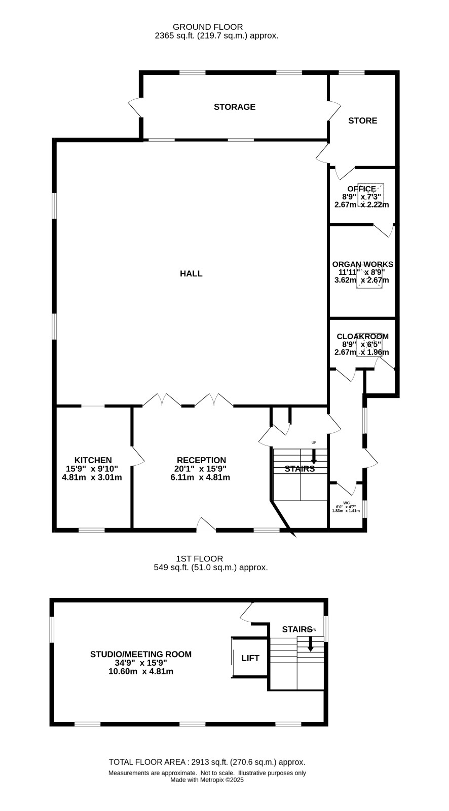
This impressive former church was built in 1817 but is now available for a potential change of use to a community building, residential use or potential exists for a wide range of alternative uses (subject to planning). There is a large main hall with various ante rooms, a kitchen, cloakrooms and a first floor meeting room. The building is Grade ll listed complete with the church organ which was built by William Denman of York and there is a walled garden which could provide off road parking. Located at the centre of Thetford the building has excellent access to a comprehensive range of shops and community facilities.

Tenure

Freehold

Ground Floor

Reception hall, kitchen, ladies and gents toilets, main hall, various offices and store rooms

First Floor

Meeting room accessed by stairs and lift (lift currently not serviced)

Outside

Walled garden mainly to front.

Viewings

Viewings are available by appointment only. The next are on Friday 3rd and Thursday 9th October. To book a viewing please contact the Norwich office.

Services

Interested parties are requested to make their own enquiries to the relevant authorities as to the availability of services.

Local Authority

Breckland Council

Solicitors

Veale Wasbrough Vizards, Ref: Greg Clark, Tel: 0121 227 3714

Important Notice to Prospective Buyers:

We draw your attention to the Special Conditions of Sale within the Legal Pack, referring to other charges in addition to the purchase price which may become payable. Such costs may include Search Fees, reimbursement of Sellers costs and Legal Fees, and Transfer Fees amongst others.

Additional Fees

Buyer's Premium - £1200 inc VAT payable on exchange of contracts.

Administration Charge - £1200 inc VAT payable on exchange of contracts.

Disbursements - Please see the legal pack for any disbursements listed that may become payable by the purchaser on completion.

View Larger Map

Disclaimer: The map preview provided above is for general guidance only and may not accurately reflect the exact location or surrounding buildings. Prospective buyers and interested parties are strongly advised to independently verify the precise location and surroundings before bidding.