Withdrawn | Lot 96

The Limes, Chelmsford Road, Purleigh, Chelmsford, Essex CM3 6PN

Withdrawn

  • Detached House
  • 7 Bedrooms
  • Tenure: Freehold

Call the team on 01702 939933 for more information

Auction Date

Wed 22/10/2025

Auction Time

10:00

Auction Venue

Livestream Auction

Exceptional detached family residence in highly sought after location and sitting on a plot of just under one acre (stms)

This freehold detached house offers over 3000 sq. ft of living accommodation, double garage and mature gardens of 0.97 acres. The property offers great potential for further extension, conversion or alternative development, subject to all necessary consents. This large family house offers flexible accommodation including up to seven bedrooms and four reception rooms. There is a large first floor terrace overlooking the gardens and beyond across the vineyard to the rear. A private driveway leads to the double garage. There is a second private drive directly off Chelmsford Road adjoining the Northern Boundary.

Tenure

Freehold

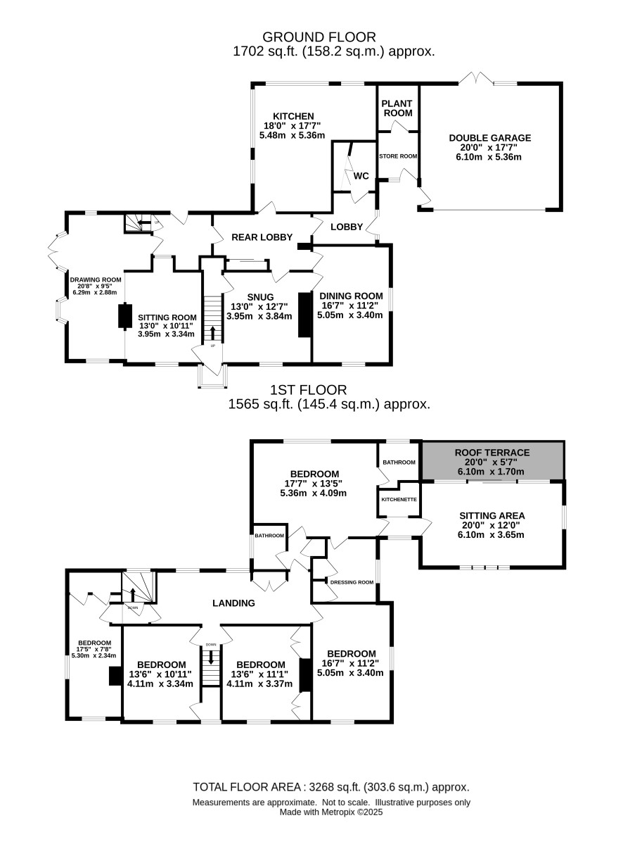
Ground floor

Entrance Hall Dining Room 16'6" x 11'3" Snug 12'112 x 12'7" Sitting room 12'1 x 10'10" Drawing Room 20'7" x 8'2" Kitchen/Diner 18' x 17'7" (Max) Downstairs Cloakroom Utility room Stoor room Double Garage 17'7" x 20'

First Floor

Landing 22'5" x 7'5" The Master suite could provide seperate accommodation, if desired Master Bedroom 14'9" x 18' Max En-suite Shower Room Kitchenette Sitting Room 12' x 20'6" Roof Terrace 20' x 10' approx. Dressing Room 5'9" x 7'2" Bedroom 2 19'1" x 15'6" Bedroom 3 13'6" x 11'1" Bedroom 4 13'6" x 10'10" Bedroom 5 17'5" x 7'8" Bathroom/WC Please note there are 2 internal staircases.

Externally

Well stocked and mature gardens of 0.97 Acres Main driveway providing parking space for 2-3 cars Secondary Driveway

Energy Efficiency Rating (EPC)

Current Rating F

Services

Interested parties are requested to make their own enquiries to the relevant authorities as to the availability of services.

Local Authority

Maldon District Council

Solicitors

Jefferies Solicitors, Ref: David Parker, Tel: 01702 443479

Important Notice to Prospective Buyers:

We draw your attention to the Special Conditions of Sale within the Legal Pack, referring to other charges in addition to the purchase price which may become payable. Such costs may include Search Fees, reimbursement of Sellers costs and Legal Fees, and Transfer Fees amongst others.

Additional Fees

Buyer's Premium - £1200 inc VAT payable on exchange of contracts.

Administration Charge - £1200 inc VAT payable on exchange of contracts.

Disbursements - Please see the legal pack for any disbursements listed that may become payable by the purchaser on completion.

View Larger Map

Disclaimer: The map preview provided above is for general guidance only and may not accurately reflect the exact location or surrounding buildings. Prospective buyers and interested parties are strongly advised to independently verify the precise location and surroundings before bidding.