Withdrawn | Lot 104

9 Mount Street, Diss, Norfolk IP22 4QG

Withdrawn

  • Detached House
  • 3 Bedrooms
  • Tenure: Freehold

Call the team on 01603 505 100 for more information

Auction Date

Wed 22/10/2025

Auction Time

10:00

Auction Venue

Livestream Auction

Refurbished delightful detached cottage situated in the well known Mount Street in the market town of Diss on the Norfolk/Suffolk border.

Number 9 Mount Street is a delightful detached character cottage in the centre of town. In excellent order throughout as the cottage has recently been refurbished throughout after water damage to the property whilst it was vacant. Offering generous accommodation with multiple spaces creating great family living. The owners have recently been successfully running the property as a holiday cottage in recent months which has been a great success. There are three living rooms and a dining area off the main sitting room. Upstairs there is three generous bedrooms, master with ensuite and two further bedrooms with family bathroom. A beautiful walled courtyard leads to an outside store with gated access into the street. This is a property that needs to be viewed internally to be appreciated.

Tenure

Freehold

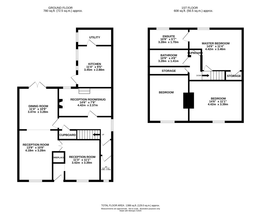
Ground floor

Entrance hall, sitting room, lounge/diner, snug, kitchen, utility room, cloakroom

First floor

Landing, master bedroom with ensuite bathroom, two further double bedrooms with family bathroom

Exterior

Gated access to the side leads to a beautiful generous courtyard garden with a variety of planting. There is a convenient outside store.

Council Tax Band

E

Viewings

Viewings are being held by appointment Please contact the Norwich Office to book your appointment time

Energy Efficiency Rating (EPC)

Current Rating E

Services

Interested parties are requested to make their own enquiries to the relevant authorities as to the availability of services.

Local Authority

South Norfolk Council

Solicitors

Spire Solicitors LLP (Norwich), Ref: Tracy Guest, Tel: 01603 886221

Important Notice to Prospective Buyers:

We draw your attention to the Special Conditions of Sale within the Legal Pack, referring to other charges in addition to the purchase price which may become payable. Such costs may include Search Fees, reimbursement of Sellers costs and Legal Fees, and Transfer Fees amongst others.

Additional Fees

Buyer's Premium - £960 inc VAT payable on exchange of contracts.

Administration Charge - £1200 inc VAT payable on exchange of contracts.

Disbursements - Please see the legal pack for any disbursements listed that may become payable by the purchaser on completion.

View Larger Map

Disclaimer: The map preview provided above is for general guidance only and may not accurately reflect the exact location or surrounding buildings. Prospective buyers and interested parties are strongly advised to independently verify the precise location and surroundings before bidding.