For Sale By Auction | 10:00, 22 October 2025 | Lot 122

2 Queens Square, Regent Road, Great Yarmouth, Norfolk NR30 2AG

Sold After

  • Terraced House
  • 3 Bedrooms
  • Tenure: Freehold

Call the team on 01603 505 100 for more information

Auction Date

Wed 22/10/2025

Auction Time

10:00

Auction Venue

Livestream Auction

Large bay fronted terrace house in need of improvement.

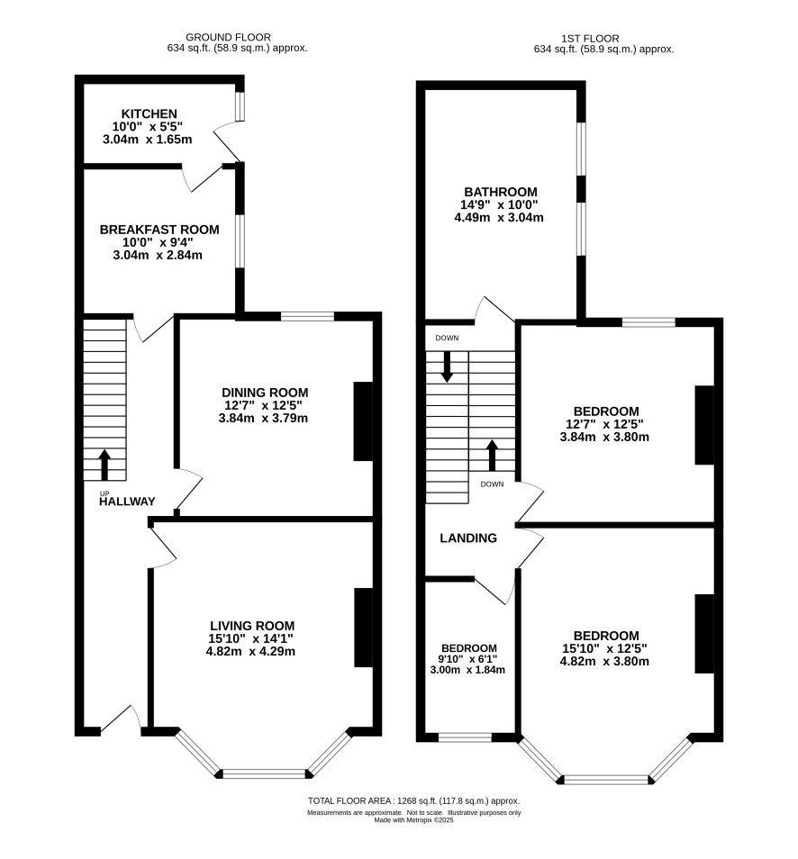
Large bay fronted three bedroom terrace house in need of refurbishment to realise its full potential. Arranged over two floors to include three receptions on the ground floor and kitchenette. On the first floor three bedrooms and large bathroom. The property has an enclosed front garden mainly laid to lawn with courtyard to the rear. Ideal for owner occupier or investor.

Tenure

Freehold

Ground Floor

Entrance Hall, siting room, dining room, breakfast room, and kitchenette.

First Floor

Three bedroom and bathroom.

Outside

Enclosed front garden mainly laid to lawn and courtyard to rear with pedestrian access.

Council Tax Band

A

Viewings

Viewings are currently being arranged for Monday 27 October Please call Norwich Office for the next appointment.

Energy Efficiency Rating (EPC)

Current Rating D

Services

Interested parties are requested to make their own enquiries to the relevant authorities as to the availability of services.

Local Authority

Great Yarmouth Borough Council

Solicitors

Ashtons Legal (Norwich), Ref: Abby Dalziel, Tel: 01603 702088

Important Notice to Prospective Buyers:

We draw your attention to the Special Conditions of Sale within the Legal Pack, referring to other charges in addition to the purchase price which may become payable. Such costs may include Search Fees, reimbursement of Sellers costs and Legal Fees, and Transfer Fees amongst others.

Additional Fees

Buyer's Premium - £960 inc VAT payable on exchange of contracts.

Administration Charge - £1200 inc VAT payable on exchange of contracts.

Disbursements - Please see the legal pack for any disbursements listed that may become payable by the purchaser on completion.

View Larger Map

Disclaimer: The map preview provided above is for general guidance only and may not accurately reflect the exact location or surrounding buildings. Prospective buyers and interested parties are strongly advised to independently verify the precise location and surroundings before bidding.