For Sale By Auction | 10:00, 22 October 2025 | Lot 44

4 Fishermans Walk, King's Lynn, Norfolk PE30 2FL

Sold £80,000

  • End of Terrace House
  • 2 Bedrooms
  • Tenure: Freehold

Call the team on 01553 777 773 for more information

Auction Date

Wed 22/10/2025

Auction Time

10:00

Auction Venue

Livestream Auction

A two bedroom end of terrace house in need of full modernisation. Ideal Investment Opportunity – Close to King’s Lynn Town Centre

This attractive two-bedroom end-terrace home offers both convenience and investment potential, being within easy walking distance of King’s Lynn town centre. With its prime location, solid rental history, and potential for value growth, this property represents an excellent opportunity for first-time buyers or landlords looking to expand their portfolio.

Tenure

Freehold

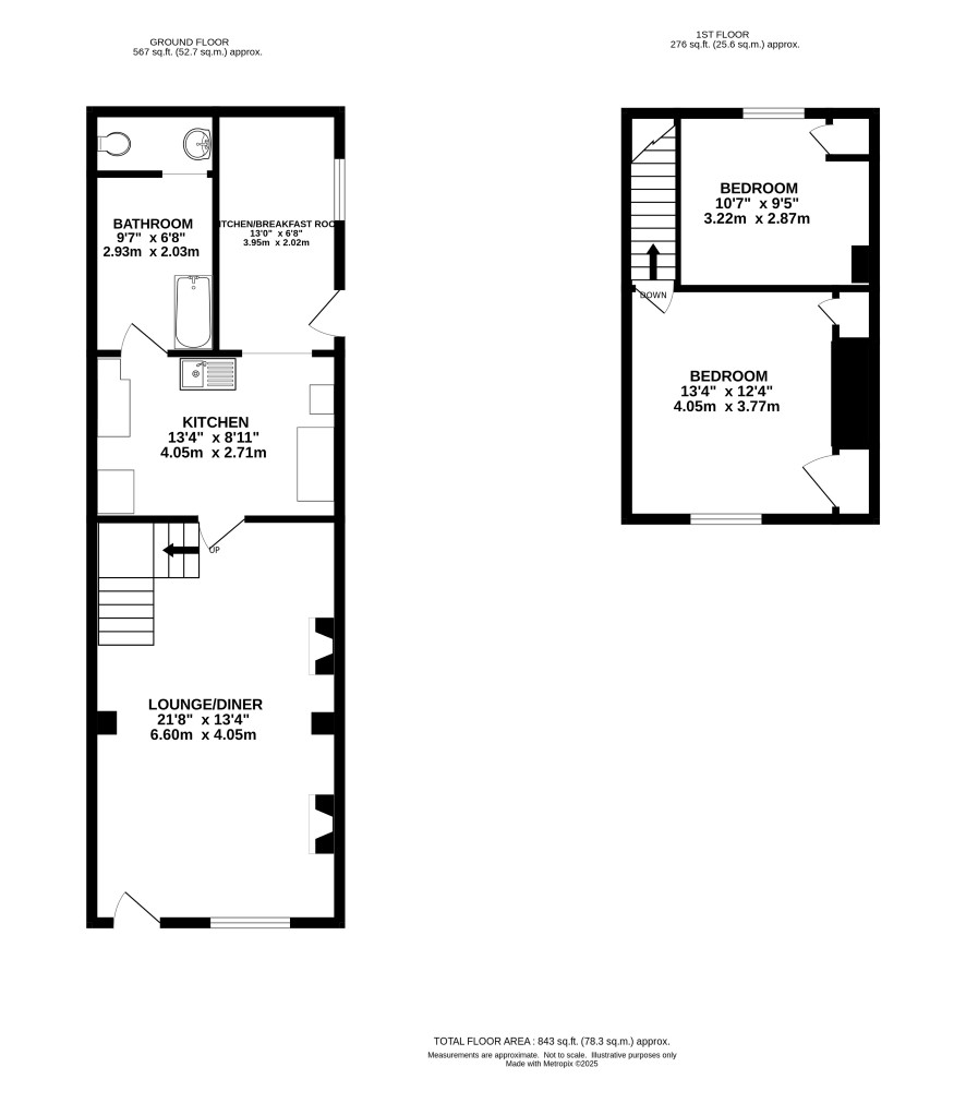
Ground Floor

Lounge/Diner, Kitchen, Breakfast Area, Bathroom

First Floor

Master Bedroom, Additional Bedroom

Council Tax Band

A

Energy Efficiency Rating (EPC)

Current Rating D

Services

Interested parties are requested to make their own enquiries to the relevant authorities as to the availability of services.

Local Authority

Kings Lynn and West Norfolk Borough Council

Solicitors

Howes Percival (Norwich), Ref: Holly Hunt, Tel: 01603804862

Important Notice to Prospective Buyers:

We draw your attention to the Special Conditions of Sale within the Legal Pack, referring to other charges in addition to the purchase price which may become payable. Such costs may include Search Fees, reimbursement of Sellers costs and Legal Fees, and Transfer Fees amongst others.

Additional Fees

Buyer's Premium - £1800 inc VAT payable on exchange of contracts.

Administration Charge - £1200 inc VAT payable on exchange of contracts.

Disbursements - Please see the legal pack for any disbursements listed that may become payable by the purchaser on completion.

View Larger Map

Disclaimer: The map preview provided above is for general guidance only and may not accurately reflect the exact location or surrounding buildings. Prospective buyers and interested parties are strongly advised to independently verify the precise location and surroundings before bidding.