For Sale By Auction | 10:00, 22 October 2025 | Lot 98

39 Clarence Street, Southend-On-Sea, Essex SS1 1BH

*Guide | £350,000 - £400,000 (plus fees)

  • Block of Apartments
  • 3 Bedrooms
  • Tenure: Freehold

Call the team on 01702 939933 for more information

Auction Date

Wed 22/10/2025

Auction Time

10:00

Auction Venue

Livestream Auction

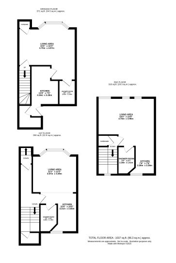
Freehold block of three quality recently configured studio flats in excellent city centre location

An attractive three storey building which was converted recently into three good quality studio flats. Two of the flats are currently let on Assured Shorthold Tenancies the third is vacant. The current full gross rental value is estimated to be around £33,000-£34,000 PA.

Tenure

Freehold

Communal entrance Door, hallways and staircases.

Lower Ground Floor

Flat 1 Studio flat comprising Lounge/Bedroom, Kitchen/dining and Shower Room

Ground Floor

Flat 2 Studio flat comprising Lounge/Bedroom, Kitchen area and Shower Room

First Floor

Flat 3 Studio Flat comprising Lounge/Bedroom/kitchen and Shower Room

Council Tax Band

A

Energy Efficiency Rating (EPC)

Current Rating C, C and C

Services

Interested parties are requested to make their own enquiries to the relevant authorities as to the availability of services.

Local Authority

Southend on Sea Borough Council

Solicitors

Metrolaw Solicitors, 92 Goodmayes Road, Ref: Sumair Iqbal, Tel: 02085901100

Important Notice to Prospective Buyers:

We draw your attention to the Special Conditions of Sale within the Legal Pack, referring to other charges in addition to the purchase price which may become payable. Such costs may include Search Fees, reimbursement of Sellers costs and Legal Fees, and Transfer Fees amongst others.

Additional Fees

Buyer's Premium - £1200 inc VAT payable on exchange of contracts.

Administration Charge - £1200 inc VAT payable on exchange of contracts.

Disbursements - Please see the legal pack for any disbursements listed that may become payable by the purchaser on completion.