For Sale By Auction | 10:00, 22 October 2025 | Lot 48

1 Norfolk Court, Boston, Lincolnshire PE21 8UP

*Guide | £125,000 (plus fees)

  • Detached House
  • 3 Bedrooms
  • Tenure: Freehold

Call the team on 01733 889833 for more information

Auction Date

Wed 22/10/2025

Auction Time

10:00

Auction Venue

Livestream Auction

A detached three bedroom house in need of cosmetic renovation and modernisation situated in the town centre with scope for development

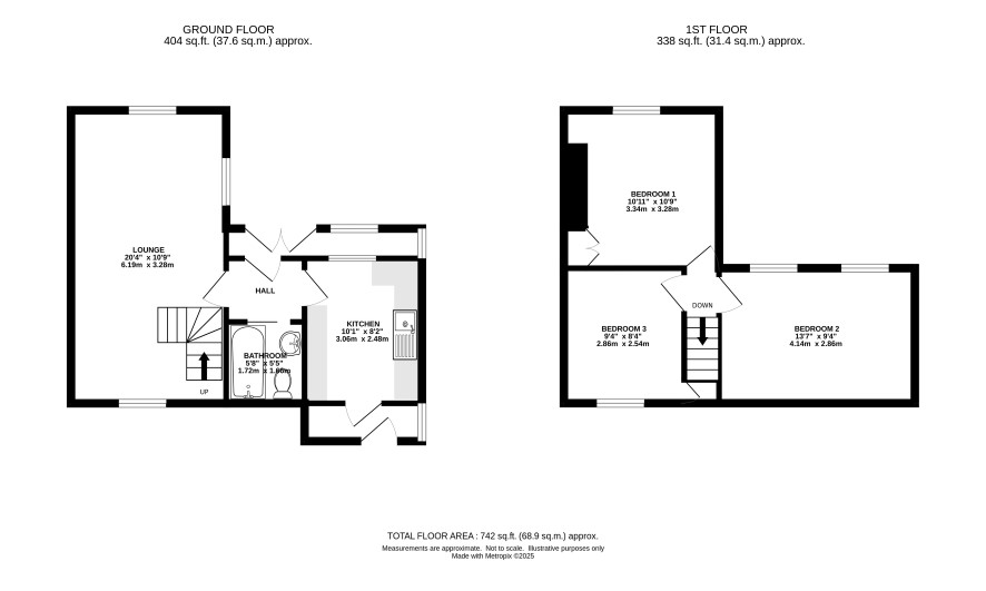
This three bedroom detached house is tucked away between Blue Street and Liquorpond Street in the town. The property, which is in need of renovation, is situated on a private plot with potential to develop and extend. The accommodation includes lounge, kitchen, bathroom and three first floor bedrooms. Double and triple glazing and air conditioner in the lounge. Boston offers a variety of shopping and recreational facilities including Asda, Aldi and other town centre shops together with a rail link.

Tenure

Freehold

Ground Floor

Porch, hall, lounge, kitchen, bathroom and a rear porch.

First floor

Three bedrooms

Outside

Private garden with mature fruit trees, shrubs and garden shed. Pedestrian access.

Council Tax Band

A

Energy Efficiency Rating (EPC)

Current Rating F

Services

Interested parties are requested to make their own enquiries to the relevant authorities as to the availability of services.

Local Authority

Boston Borough Council

Solicitors

Ringrose Law (Boston), Ref: Beverley Kirk, Tel: 01205 314628

Important Notice to Prospective Buyers:

We draw your attention to the Special Conditions of Sale within the Legal Pack, referring to other charges in addition to the purchase price which may become payable. Such costs may include Search Fees, reimbursement of Sellers costs and Legal Fees, and Transfer Fees amongst others.

Additional Fees

Buyer's Premium - £1200 inc VAT payable on exchange of contracts.

Administration Charge - £1200 inc VAT payable on exchange of contracts.

Disbursements - Please see the legal pack for any disbursements listed that may become payable by the purchaser on completion.