For Sale By Auction | 10:00, 22 October 2025 | Lot 24

Corner Cottage, Lower Globe Lane, Blofield, Norwich, Norfolk NR13 4RJ

*Guide | £300,000 (plus fees)

  • Detached House
  • 4 Bedrooms
  • Tenure: Freehold

Call the team on 01603 505 100 for more information

Auction Date

Wed 22/10/2025

Auction Time

10:00

Auction Venue

Livestream Auction

Versatile detached Chalet style home situated in the popular village of Blofield

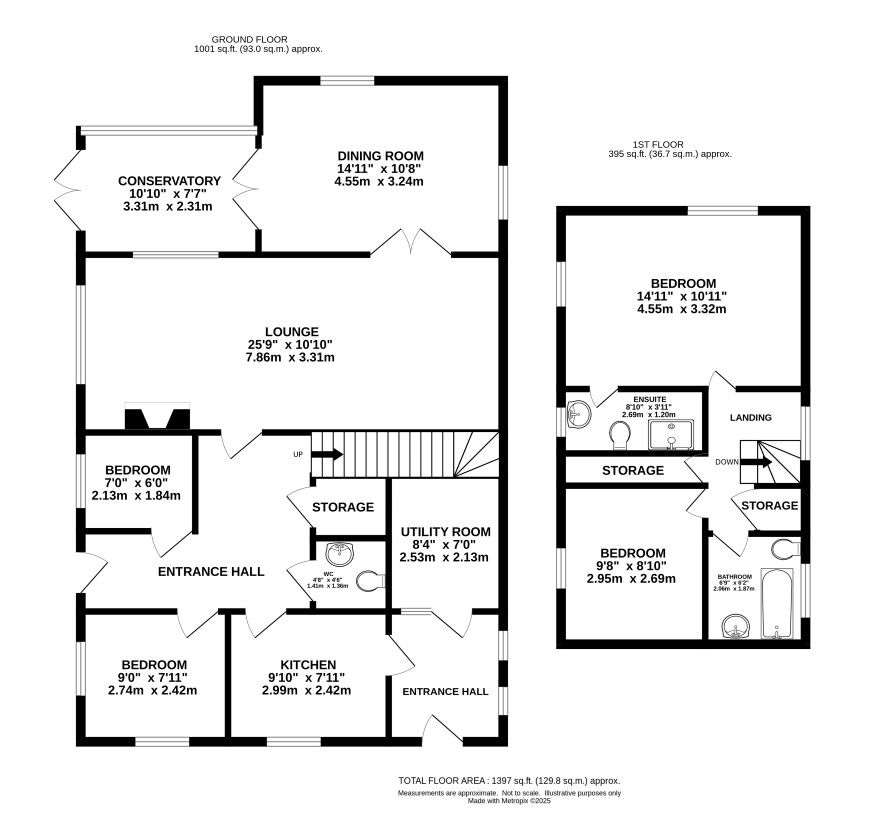
Built in the late 1990s on the site of a former pumping station, this individual home offers flexible accommodation over two floors. The ground floor provides three reception rooms, kitchen, utility, and two smaller bedrooms/home offices. Upstairs are two bedrooms, one with en-suite, plus a family bathroom. A former underground holding tank, accessed via the utility, offers unusual additional storage. Outside is a driveway, garage and rear garden with paved terraces, decking, pergola, summer house, raised lawn and large patio. Blofield is a sought-after village east of Norwich, with good local amenities and transport links.

Tenure

Freehold

Ground floor

Entrance hall, two bedroom, kitchen, sitting room, dining room, conservatory, utility and basement.

First floor

Principal bedroom with ensuite, Bedroom two and main bathroom.

Outside

Driveway, garage and rear garden with paved terraces, decking, pergola, summer house, raised lawn and large patio.

Council Tax Band

D

Viewings

Viewings are strictly by appointment only and the next are on Thursday 2nd October Friday 10th October Tuesday 14th October. Please call the Norwich Office to book your appointment.

Energy Efficiency Rating (EPC)

Current Rating D

Services

Interested parties are requested to make their own enquiries to the relevant authorities as to the availability of services.

Local Authority

Broadland District Council

Solicitors

Leathes Prior (The Close), Ref: Rachael Hughes, Tel: 01603 281004

Important Notice to Prospective Buyers:

We draw your attention to the Special Conditions of Sale within the Legal Pack, referring to other charges in addition to the purchase price which may become payable. Such costs may include Search Fees, reimbursement of Sellers costs and Legal Fees, and Transfer Fees amongst others.

Additional Fees

Buyer's Premium - £960 inc VAT payable on exchange of contracts.

Administration Charge - £1200 inc VAT payable on exchange of contracts.

Disbursements - Please see the legal pack for any disbursements listed that may become payable by the purchaser on completion.