For Sale By Auction | 10:00, 22 October 2025 | Lot 74

22 Turin Street, Ipswich, Suffolk IP2 8DQ

Sold £116,000

  • Terraced House
  • 2 Bedrooms
  • Tenure: Freehold

Call the team on 01473 558 888 for more information

Auction Date

Wed 22/10/2025

Auction Time

10:00

Auction Venue

Livestream Auction

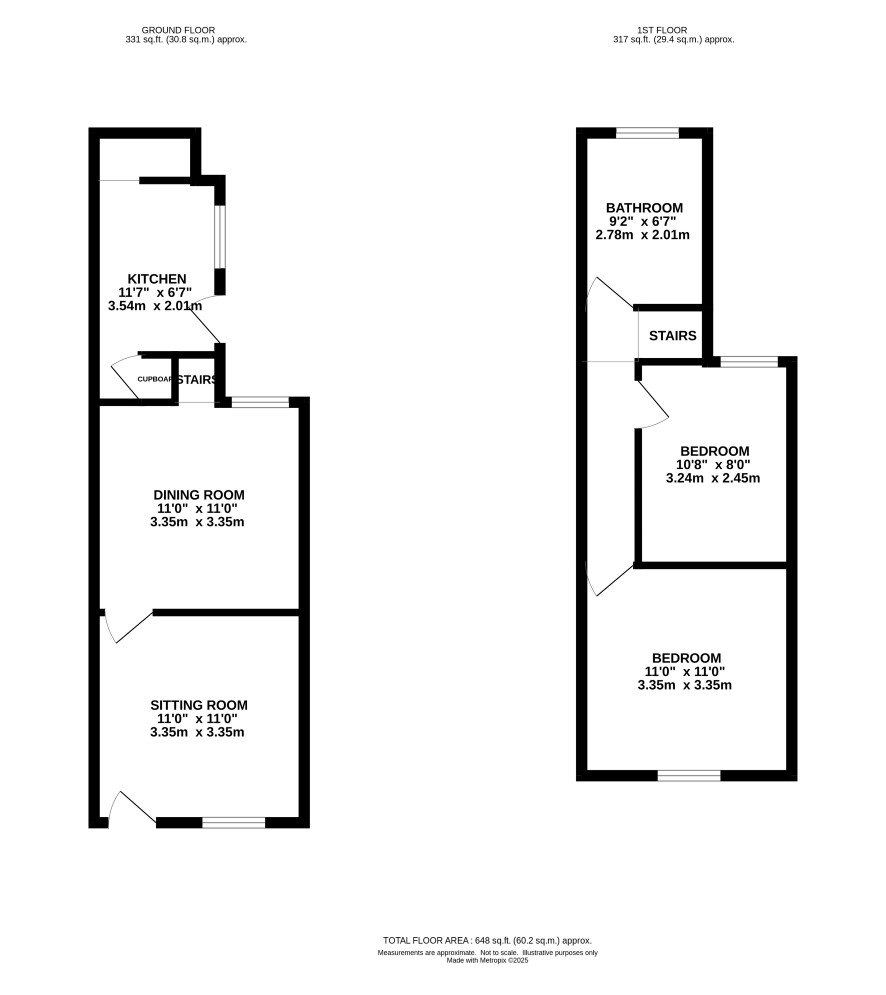
A Victorian terraced house requiring modernisation

Situated in the 'Old Stoke' area to the south of the town centre is this mid-terraced house which requires internal refurbishment. The accommodation includes two reception rooms, two bedrooms, a first floor bathroom and already benefits from gas central heating and double glazing. With a high demand for rental properties in the area and the potential for a strong monthly income we consider this to be an excellent investment opportunity.

Tenure

Freehold

Council Tax Band

A

Viewing

Open Viewing has been scheduled as follows: Wednesday 8th October - 10.30am to 11.00am Wednesday 15th October - 11.00am to 11.30am BOOKING AN APPOINTMENT IS ESSENTIAL Please call 01473 558888 to confirm your attendance

Energy Efficiency Rating (EPC)

Current Rating D

Services

Interested parties are requested to make their own enquiries to the relevant authorities as to the availability of services.

Local Authority

Ipswich Borough Council

Solicitors

Attwells Solicitors (Ipswich), Ref: Benjamin Topliss, Tel: 01473229894

Important Notice to Prospective Buyers:

We draw your attention to the Special Conditions of Sale within the Legal Pack, referring to other charges in addition to the purchase price which may become payable. Such costs may include Search Fees, reimbursement of Sellers costs and Legal Fees, and Transfer Fees amongst others.

Additional Fees

Buyer's Premium - £1140 inc VAT payable on exchange of contracts.

Administration Charge - £1200 inc VAT payable on exchange of contracts.

Disbursements - Please see the legal pack for any disbursements listed that may become payable by the purchaser on completion.

View Larger Map

Disclaimer: The map preview provided above is for general guidance only and may not accurately reflect the exact location or surrounding buildings. Prospective buyers and interested parties are strongly advised to independently verify the precise location and surroundings before bidding.