For Sale By Auction | 10:00, 10 December 2025 | Lot 44

1 West Drove North, Walpole St. Peter, Wisbech, Norfolk PE14 7HU

*Guide | £100,000 - £120,000 (plus fees)

  • Semi-Detached House
  • 3 Bedrooms
  • Tenure: Freehold

Call the team on 01553 777 773 for more information

Auction Date

Wed 10/12/2025

Auction Time

10:00

Auction Venue

Livestream Auction

A three bedroom semi detached house in need of renovation with a large plot to rear - ideal for a builder or developer

This three bedroom semi detached house, which is in need of renovation, has field views to the front and rear. Benefitting from a large plot at the rear, the property has a lounge, kitchen-diner, bathroom and separate w.c. On the first floor can be found three bedrooms. Outside benefits from parking. Walpole St Peter lies between Wisbech and Kings Lynn, both offering a variety of facilities.

Tenure

Freehold

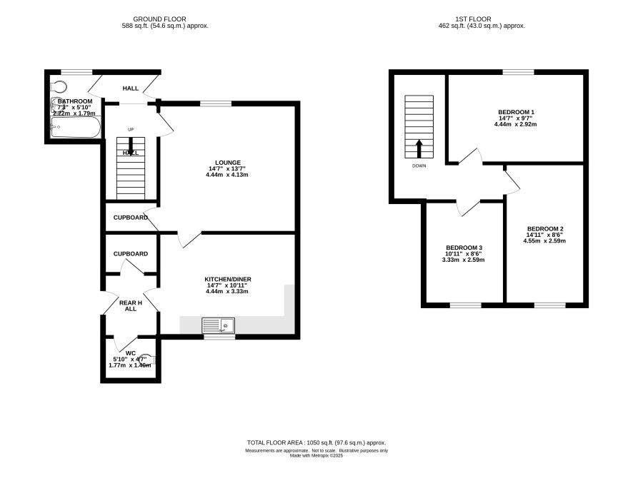
Ground floor

Hall, bathroom, lounge, kitchen-diner, w.c.

First floor

Landing, three bedrooms.

Outside

Large plot to rear. Parking to front.

Council Tax Band

A

Energy Efficiency Rating (EPC)

Current Rating D

Services

Interested parties are requested to make their own enquiries to the relevant authorities as to the availability of services.

Local Authority

Kings Lynn and West Norfolk Borough Council

Solicitors

Howes Percival (Norwich), Ref: Holly Hunt, Tel: 01603804862

Important Notice to Prospective Buyers:

We draw your attention to the Special Conditions of Sale within the Legal Pack, referring to other charges in addition to the purchase price which may become payable. Such costs may include Search Fees, reimbursement of Sellers costs and Legal Fees, and Transfer Fees amongst others.

Additional Fees

Buyer's Premium - £1800 inc VAT payable on exchange of contracts.

Administration Charge - £1200 inc VAT payable on exchange of contracts.

Disbursements - Please see the legal pack for any disbursements listed that may become payable by the purchaser on completion.

View Larger Map

Disclaimer: The map preview provided above is for general guidance only and may not accurately reflect the exact location or surrounding buildings. Prospective buyers and interested parties are strongly advised to independently verify the precise location and surroundings before bidding.